

CBRE GmbH
Herr Stefan Drissner
+49 ···
Nr. anzeigenPreise & Kosten
Provision für Mieter
provisionsfrei
Warum sehe ich diese Anzeige? – Du siehst diese Anzeige basierend auf Ihrer Navigation auf unserer Website und den Suchkriterien, die du verwendet hast.
Lage
Die Gemeinde Ismaning liegt ca. 15 km nordöstlich vom Stadtkern München. Das hochwertige Gewerbegebiet Osterfeld hat sich in den letzten Jahren zu einem gefragten High-Tech Standort entwickelt. Eine gute Anbindung an die öffentlichen Verkehrsmittel ist durch die ca. 10 Gehminuten entfernte Haltestelle der Linie S 8...
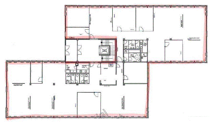
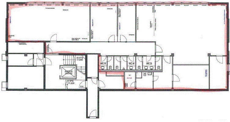
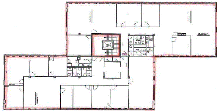
Büro-/Praxisfläche
Kategorie
Bürofläche
Baujahr
2002
Geschoss
Erdgeschoss
Energie & Heizung
Warum sehe ich diese Anzeige? – Du siehst diese Anzeige basierend auf Ihrer Navigation auf unserer Website und den Suchkriterien, die du verwendet hast.
Wärme
Strom
Energieausweistyp
Verbrauchsausweis
Gebäudetyp
Nicht-Wohngebäude
Wesentliche Energieträger
GAS
Gültigkeit
seit 30.04.2014
Endenergieverbrauch (Wärme)
110,30 kWh/(m²·a)
Endenergieverbrauch (Strom)
24,90 kWh/(m²·a)
Details
Ausstattung
Bei dem Objekt handelt es sich um einen hochwertigen Büroneubau, der durch die hochwertige Architektur und Fassadenkonstruktion beeindruckt. Der großzügige Eingangsbereich als auch die Freiflächengestaltung runden das eindrucksvolle Erscheinungsbild ab. Die Büroeinheiten verfügen über außenliegenden Sonnenschutz...
Weitere Informationen
Sonstiges
Lise-Meitner-Straße 1, EG: Die Flächen im EG können nur in Kombination mit den Flächen im UG angemietet werden
Stichworte
Gesamtfläche: 3.325,00 m²
Anbieter der Immobilie
CBRE GmbH
Isartorplatz 1, 80331 München

Online-ID: 2mtx55k
Referenznummer: 29564@13@0@15042
Finde Angebote wie dieses
Hier geht es zu unserem Impressum, den Allgemeinen Geschäftsbedingungen, den Hinweisen zum Datenschutz und nutzungsbasierter Online-Werbung.