Version: 8.24.0Navigation ĂĽberspringen
11,11 €
4 Zimmer  â€˘  126 m² BĂĽrofläche
Immowelt logo

Bürofläche zur Miete • provisionsfrei
11,11 €
/m²
4 Zimmer  â€˘  126 m² BĂĽrofläche

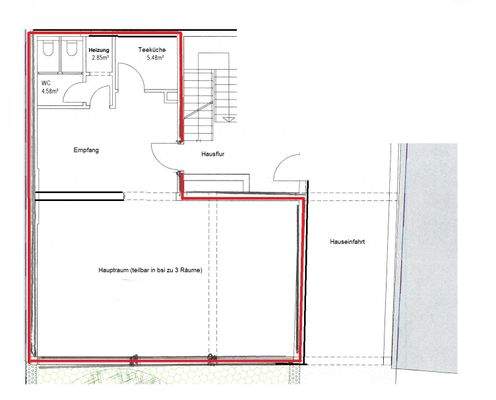
Ein bis drei Räume, Empfang, WC + Teeküche... frisch renoviert extra für Sie!

Nahe am Puls der Stadt, und nur wenige hundert Meter von der Frankfurter Messe entfernt, bieten wir Ihnen hier einen Ort für Ihre Unternehmung an. Ob Sie nun einen offenen Bereich oder aber bis zu drei Räume plus Empfangsbereich benötigen - hier können Sie Ihr Geschäft verwirklichen. Diese Immobilie mit neuer Renovierung und neuem Bodenbelag macht's möglich.

Eine neu eingerichtete Teeküche und ein WC Bereich mit 2 Plätzen bieten Ihren Kunden und Mitarbeitern ein adäquates Arbeitsumfeld und auch die Lage sorgt für zufriedene Mitarbeitende. Zusätzlich wird auch noch eine neue Heiztherme installiert - das steigert die Energie-Effizienz erheblich.

Gerne sehen wir uns die Immobilie gemeinsam mit Ihnen vor Ort an.

Merkmale

  • Erdgeschoss
  • Bodenbelag: Kunststoff
- Top Lage in Messe Nähe
- Gutes Umfeld fĂĽr Ihre Mitarbeiter
- Bis zu 3 Räume für Ihr Business!
- Ein angenehm dimensionierter Empfangsbereich
- 2 abgetrennte WCs im WC Raum
- Ein kleiner Vorraum zum WC mit Heizung
- 1 Teeküche mit neuen Möbeln
- 1 Kellerraum gehört auch dazu
- Eine neue Gastherme wird noch installiert

Grundrisse

Grundrisse
1 / 1

Virtueller Rundgang

3D tour

Realisiere Dein Projekt

Bausubstanz und Energie

Energieausweis

Endenergiebedarf (Wärme)

  • Baujahr1964
  • Zustand der Immobilierenoviert / saniert
Immowelt logo

Mietkosten

Nettomiete
11,11 €/m²
1.400 €
Nebenkosten
300 €
Zusätzliche Kosten
Heizkosten
Provision fĂĽr Mieter
provisionsfrei
Kaution
4.200,00 3 MM
Weitere Preisinformationen
Nettokaltmiete: 1.400,00 EUR

Lage

address-icon
Gallus, Frankfurt (60327)
Der Anbieter hat die genaue Adresse nicht freigegeben
Diese Büro- oder Praxisimmobilie bietet eine zentrale Lage mit top Anbindung an den öffentlichen Nahverkehr. Besonders hervorzuheben ist die Nähe zur Frankfurter Messe, die nur wenige Gehminuten entfernt liegt. Die S-Bahn-Station Frankfurt (Main) Galluswarte ist nur etwa 350 Meter entfernt, und die nächste U-Bahn-Station, Frankfurt am Main Messe, erreichen Sie in ca. 525 Metern. Auch die Bushaltestelle Dubliner Straße ist in unmittelbarer Nähe, etwa 110 Meter entfernt.
Für Autofahrer sind die Autobahnauffahrten in einer Entfernung von ca. 1,5 bis 2 Kilometern schnell erreichbar, was eine flexible Mobilität gewährleistet. Der Flughafen Frankfurt ist nur etwa 15 Kilometer entfernt.

Die Umgebung bietet eine Vielzahl an Annehmlichkeiten, die sowohl für Mitarbeiter als auch für Kunden attraktiv sind. Sportbegeisterte finden in der Nähe zahlreiche Fitnessstudios wie das Basic-Fit in ca. 165 Metern Entfernung sowie diverse Sportstätten. Für den täglichen Bedarf sind Supermärkte in wenigen Gehminuten erreichbar. Der nahegelegene Park lädt zu entspannten Pausen ein, während zahlreiche Restaurants und Bars in der Umgebung für kulinarische Abwechslung sorgen.

Weitere Informationen

Sonstiges Achtung: Bitte fragen Sie unbedingt mit vollständigen Kontaktdaten an! Ein paar Informationen über Sie als Mieter sollten Sie bitte im Freitextfeld erfassen.
Gerne fĂĽhren wir gemeinsam mit Ihnen eine Besichtigung durch und stehen Ihnen mit weiteren Informationen jederzeit zur VerfĂĽgung.
Für die in diesem Exposé gemachten Angaben können wir leider keine Haftung übernehmen, da sie auf den Angaben der Eigentümer/von Dritten beruhen.
Diese Immobilie bieten wir Ihnen provisionsfrei zur Miete an.
Änderungen der Bedingungen und anderweitige Verwertung behält sich der Eigentümer jederzeit vor. Stichworte Nutzfläche: 4,00 m², Gesamtfläche: 126,00 m², vermietbare Fläche: 126,00 m², Büroteilfläche: 126,00 m², Bundesland: Hessen

Weitere Services

Lust auf eine Besichtigung?
Eine Frage zur Immobilie?
Nachricht hinzufĂĽgen
Mit der Nutzung der oben angegebenen Telefonnummer oder durch Klicken auf „Kontaktieren“ akzeptierst Du die Allgemeinen Nutzungsbedingungen, denen Du jederzeit widersprechen kannst. Weitere Informationen zum Datenschutz

Ăśber den Anbieter

Kirchstraße 9, 61462 Königstein, Deutschland
partner badge
Partnerschaft
Herr Bernd Pastowski
Herr Bernd PastowskiDein Kontakt
Online-ID: 2mtyd5k
Referenznummer: 1023-485-BP
RE/MAX Immobilien-Zentrale Königstein
title
RE/MAX Immobilien-Zentrale Königstein
Bewertung: 5 von 5 Sternen
Nachricht hinzufĂĽgen
Mit der Nutzung der oben angegebenen Telefonnummer oder durch Klicken auf „Kontaktieren“ akzeptierst Du die Allgemeinen Nutzungsbedingungen, denen Du jederzeit widersprechen kannst. Weitere Informationen zum Datenschutz
Wie zufrieden bist du mit dieser Seite (nicht mit der Immobilie selbst)?