

Wohnung zur Miete427 €4 Zimmer • 67,8 m² • 4. Geschoss • frei ab 01.06.2026
427 €
4 Zimmer • 67,8 m² • 4. Geschoss • frei ab 01.06.2026
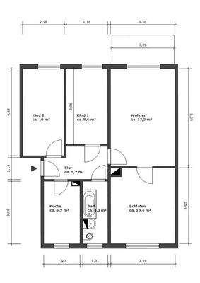
4-Raum-Wohnung mit Balkon und schöner Aussicht
Merkmale
- frei ab 01.06.2026
- 4. Geschoss
- Bad mit Fenster
- Balkon
Grundrisse
Grundrisse
1 / 1
Realisiere Dein Projekt
Bausubstanz und Energie
Energieausweis
B
- Baujahr1961
Mietkosten
Warmmiete
632,14 €
Kaltmiete
6,30 €/m²
427,14 €
Nebenkosten
105 €
Heizkosten
100 €
Kaution
1281 €
Lage

W.-Pieck-Str. 28, Vetschau, Vetschau/Spreewald (03226)
Weitere Informationen
Weitere Services
Lust auf eine Besichtigung?
Eine Frage zur Immobilie?
Über den Anbieter
Oer-Erkenschwick-Platz 1, 03222 Lübbenau
Frau Katrin SchiemenzDein Kontakt
Online-ID: 25PRY8RF6WBR
Referenznummer: 5203.28.8
WIS Wohnungsbaugesellschaft im Spreewald mbH
Bewertung: 5 von 5 Sternen
Wie zufrieden bist du mit dieser Seite (nicht mit der Immobilie selbst)?