

Peter Lademann - Freie Handelsvertretung für die BIEN-ZENKER GmbH
Herr Peter Lademann
+49 ···
Nr. anzeigenPreise & Kosten
Provision für Käufer
provisionsfrei
Lage
Emersleben bietet eine ideale Lage für Familien und Berufstätige gleichermaßen. In unmittelbarer Nähe befinden sich zahlreiche Bildungseinrichtungen wie Kindergärten und Schulen, was besonders für Familien mit Kindern von Vorteil ist. Auch Gesundheitseinrichtungen sind gut erreichbar, sodass medizinische Versorgung immer...
Das Haus
Kategorie
Einfamilienhaus
Energie & Heizung
Warum sehe ich diese Anzeige? – Du siehst diese Anzeige basierend auf Ihrer Navigation auf unserer Website und den Suchkriterien, die du verwendet hast.
Weitere Energiedaten
Haustyp
KfW 40
Heizungsart
Luft-/Wasser-Wärmepumpe
Details
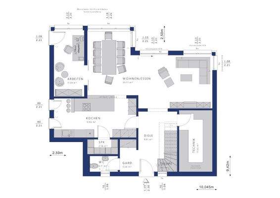
Objektbeschreibung
Das Meisterwerk - perfekt bis ins Detail.
EVOLUTION 154 überzeugt wie alle EVOLUTION Häuser mit Vielfalt und Individualität in Architektur und Design. Die
großen Fenster und die klare Liniensprache verleihen diesem Haus sein elegant-modernes Gesicht. Unabhängig von
Dachform, Vielfalt an Gestaltungsmöglichkeiten bei...
Ausstattung
Wir erstellen Ihr Haus komplett bezugsfertig, deshalb sind folgende Leistungen in unserem Haus serienmäßig:
+ Ausführung als Effizienzhaus 40 plus,
+ Alle zur Erstellung des Bauantrages notwendigen Architektenleistungen,
+ Ausführliches Baugrundgutachten für das Grundstück,
+ Bodenplatte mit Erdarbeiten und...
Weitere Informationen
Sonstiges
Das Grundstück ist im obigen Preis eingerechnet, es wird ohne zusätzliche Provision an einen Bien-Zenker Bauherren bereitgestellt.
Zusätzliche Baunebenkosten müssen noch hinzugerechnet werden. Hierüber beraten wir Sie gern.
Wir bieten Ihnen interessante Finanzierungsmöglichkeiten inklusive Beantragung aller...
Anbieter der Immobilie
Peter Lademann - Freie Handelsvertretung für die BIEN-ZENKER GmbH
Döbichauer Straße 13, 04435 Schkeuditz

Online-ID: 2mu295z
Referenznummer: 11250-8077
Finde Angebote wie dieses
Hier geht es zu unserem Impressum, den Allgemeinen Geschäftsbedingungen, den Hinweisen zum Datenschutz und nutzungsbasierter Online-Werbung.