
J&P Immobilienmakler GmbH
Frau Daniela Schachinger
+43 ···
Nr. anzeigenPreise & Kosten
Provision für Käufer
3%
Die Wohnung
Wohnungslage
Dachgeschoss
Bezug
nach Fertigstellung
Wohnanlage
Energie & Heizung
Warum sehe ich diese Anzeige? – Du siehst diese Anzeige basierend auf Ihrer Navigation auf unserer Website und den Suchkriterien, die du verwendet hast.
Heizwärmebedarf (HWB)
35,50 kWh/(m²·a)
Gesamtenergieeffizienz (fGEE)
0,69
Weitere Energiedaten
Energieträger
Fernwärme
Heizungsart
Zentralheizung
Details
Objektbeschreibung
Nur wenige Schritte vom Prater entfernt und unmittelbar am Donaukanal entsteht ein außergewöhnliches Wohnensemble, das urbanes Lebensgefühl mit hohem individuellem Gestaltungsspielraum verbindet.
Im neu errichteten Dachgeschoss eines liebevoll modernisierten Altbaus werden insgesamt 9 hochwertige Wohnungen mit 2 bis 5...
Weitere Informationen
Stichworte
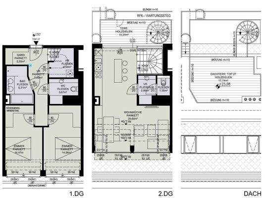
Anzahl der separaten WCs: 1, Anzahl Terrassen: 1, Balkon-Terrassen-Fläche: 27,98 m², Wohnungsnr.: 27
Anbieter der Immobilie
J&P Immobilienmakler GmbH
Lehargasse 7, 1060 WIEN
Online-ID: 2mu335l
Referenznummer: 101/18521
Finde Angebote wie dieses
Günstige Immobilienfinanzierung einfach online berechnen
Persönliches Angebot berechnenWarum sehe ich diese Werbung? – Du siehst diese Werbung basierend auf Deiner Navigation auf unserer Website und der von Dir verwendeten Suchkriterien.
Diese Werbung wird bezahlt von durchblicker
Werbung melden
Hier geht es zu unserem Impressum, den Allgemeinen Geschäftsbedingungen, den Hinweisen zum Datenschutz und nutzungsbasierter Online-Werbung.