
LUTTER Immobilien Unternehmensgesellschaft mbH
Herr Patrick Stahl
+49 ···
Nr. anzeigenPreise & Kosten
Provision für Käufer
7,14 % vom Kaufpreis inkl. MwSt.
Lage
Diese Gewerbeimmobilie befindet sich in einer zentralen Lage im nordwestlichen Gewerbegebiet von Güstrow, direkt an der Hauptstraße. Die Nachbarschaft bietet eine Vielzahl von Annehmlichkeiten und Vorteilen für potenzielle Käufer.
In unmittelbarer Nähe finden Sie einen Discounter, der für einen hohen Kundenverkehr...
Das Grundstück
Kategorie
Gewerbe-Grundstück
Details
Objektbeschreibung
Gepflegte Gewerbeimmobilie zum Kauf in Güstrow. Dieses vielseitige Gewerbeobjekt mit gesamt ca. 6.555 m² Grundstücksfläche bietet eine Kombination aus Büro- und Lagerflächen, mit ca. 1.178 m², und Freifläche, ca. 5.377 m², ideal für Unternehmen, die sowohl Arbeits- als auch Lagerräume und Außenanlagen benötigen.
Die...
Ausstattung
Das bebaute Gewerbeobjekt besteht aus drei Grundstücksflächen:
Flurstück:
50/2 ca. 867 m²
51 ca. 2.143 m²
52/5 ca. 3.545 m²
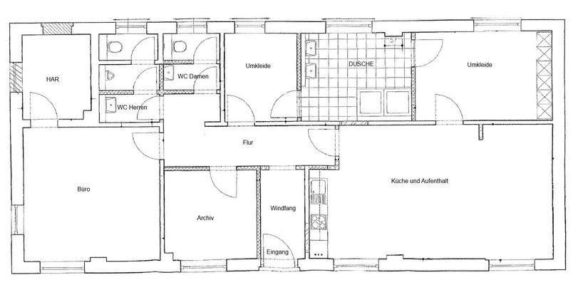
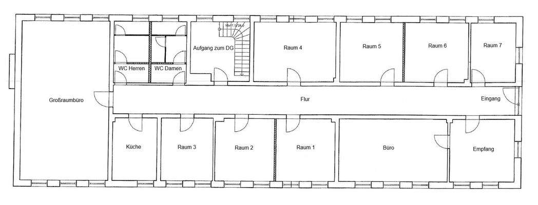
Hinzu kommen 3 Bürogebäude und 1 LKW-Garagenkomplex, diese auf dem Gelände verfügbar sind.
Büro- und Nebenflächen:
Gebäude 1 ca. 327,05 m²
Gebäude 2 ca. 241,27...
Weitere Informationen
Sonstiges
Besuchen Sie auch gerne unsere Homepage.
www.LUTTER.net
Wir freuen uns auf Ihr Feedback - Ihr LUTTER Immobilien-Team
Stichworte
Garage vorhanden, Stellplatz vorhanden, Gesamtfläche: 1.178,00 m², Bundesland: Mecklenburg-Vorpommern
Anbieter der Immobilie
LUTTER Immobilien Unternehmensgesellschaft mbH
Kröpeliner Straße 57, 18055 Rostock
Online-ID: 2mu485a
Referenznummer: 8099
Finde Angebote wie dieses
Hier geht es zu unserem Impressum, den Allgemeinen Geschäftsbedingungen, den Hinweisen zum Datenschutz und nutzungsbasierter Online-Werbung.