
Parma Immobilien
Frau Stanimira Georgieva
004 ···
Nr. anzeigenPreise & Kosten
Provision für Käufer
3,57 % inkl. MwSt.
Lage
Rölsdorf ist mit etwas mehr als 2.300 Einwohnern ein Stadtteil der Stadt Düren im Kreis Düren. Alle erforderlichen Geschäfte des täglichen Bedarfs wie Bäckerei, Supermärkte und Apotheken sind nur wenige Minuten entfernt und bequem zu erreichen. In unmittelbarer Nähe befinden sich ein Spielplatz, ein Kindergarten und der...
Das Haus
Kategorie
Reihenendhaus
Baujahr
1955
Bezug
nach Vereinbarung
Energie & Heizung
Warum sehe ich diese Anzeige? – Du siehst diese Anzeige basierend auf Ihrer Navigation auf unserer Website und den Suchkriterien, die du verwendet hast.
Weitere Energiedaten
Energieträger
Gas
Heizungsart
Zentralheizung
Details
Objektbeschreibung
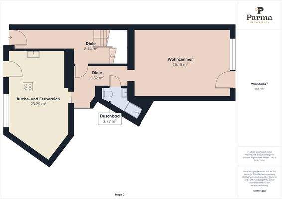
Dieses gepflegte in massiver Bauweise errichtete Einfamilienhaus aus dem Jahr 1955 befindet sich in Düren- Rölsdorf und bietet mit einer Wohnfläche von ca. 144 m² und einer Grundstücksgröße mit 713 m² viel Raum für die ganze Familie.
Das Erdgeschoss verfügt über ein gemütliches Wohnzimmer, ein Duschbad und eine offene...
Ausstattung
Baujahr 1955
Bauweise: massiv
Grundstücksgröße: 713 m²
Wohnfläche: 144 m²
voll unterkellert
im Zuge einer Kernsanierung in 2015 erfolgten nachfolgende Maßnahmen:
*Außendämmung inkl. Wärmeverbundsystem
*Dachdämmung
*Erneuerung Gasheizung
*Einbau von Kunststofffenstern mit 2-fach Verglasung inkl...
Weitere Informationen
Sonstiges
Bei Fragen stehen wir Ihnen gerne zur Verfügung. Bitte nehmen Sie Kontakt über das Kontaktformular auf.
Stanimira Georgieva
Immobilienmaklerin
Parma Immobilien
Monschauer Straße 64
52355 Düren
Kontakt
Telefon: +49 2421 9748688
Mobil:
E-Mail...
Anbieter der Immobilie
Online-ID: 2mu5h5f
Referenznummer: JH351
Finde Angebote wie dieses
Hier geht es zu unserem Impressum, den Allgemeinen Geschäftsbedingungen, den Hinweisen zum Datenschutz und nutzungsbasierter Online-Werbung.