
ohne-makler.net - Immobilien selbst vermarkten
Privat von Andreas Müller
Kontaktiere den Anbieter schriftlich, es ist keine Telefonnummer hinterlegt.
Preise & Kosten
Provision für Käufer
provisionsfrei
Lage
Das Objekt befindet sich in Miedelsbach, einem idyllischen Teilort von Schorndorf. Die
Umgebung ist geprägt von weiten Feldern, grünen Wiesen und ausgedehnten Wäldern
- ein idealer Ort für Naturliebhaber und Ruhesuchende. Am Fuße des Welzheimer
Waldes gelegen, bietet Miedelsbach zahlreiche Möglichkeiten für...
Die Wohnung
Wohnungslage
3. Geschoss (Dachgeschoss)
Bezug
nach Absprache
Wohnanlage
Energie & Heizung
Warum sehe ich diese Anzeige? – Du siehst diese Anzeige basierend auf Ihrer Navigation auf unserer Website und den Suchkriterien, die du verwendet hast.
Energieausweistyp
Bedarfsausweis
Gebäudetyp
Wohngebäude
Effizienzklasse
E
Endenergiebedarf
154,00 kWh/(m²·a)
Weitere Energiedaten
Energieträger
Pellets
Heizungsart
Zentralheizung
Details
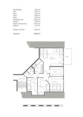
Objektbeschreibung
Attraktive 4-Zimmer-Dachgeschosswohnung in Miedelsbach - mit Balkon, Tiefgarage und
Stellplatz. Diese charmante Dachgeschosswohnung aus dem Baujahr 1995 bietet mit rund 79,98 m² Wohnfläche und einer durchdachten Raumaufteilung ideale Voraussetzungen für Paare, kleine Familien oder als Kapitalanlage.
Die Wohnung...
Ausstattung
Balkon, Keller, Duschbad, Einbauküche, Gäste-WC, Laminat, Fliesen
Preisinformation
2 Stellplätze, Kaufpreis je: 12.000,00 EUR
1 Tiefgaragenstellplatz, Kaufpreis: 12.000,00 EUR
Weitere Informationen
Sonstiges
Heizungsart: Zentralheizung
Energieträger: Holzpellets
Die Wohnung steht ab sofort zur Verfügung.
Makleranfragen nicht erwünscht. Nach § 7 UWG sind unaufgeforderte Kontaktaufnahmen durch Makler ohne ausdrückliche Einwilligung des Empfängers verboten!
ohne-makler (OM) ist weder Anbieter...
Anbieter der Immobilie
ohne-makler.net - Immobilien selbst vermarkten
Humboldtstr. 25 A, 21509 Glinde
Privat von Andreas Müller
Dein Ansprechpartner
Kontaktiere den Anbieter schriftlich, es ist keine Telefonnummer hinterlegt.
Online-ID: 2mu5z5j
Referenznummer: 389975
Finde Angebote wie dieses
Hier geht es zu unserem Impressum, den Allgemeinen Geschäftsbedingungen, den Hinweisen zum Datenschutz und nutzungsbasierter Online-Werbung.