
HYPO-GRUND-INVEST
Frau Ricarda Kube
004 ···
Nr. anzeigenPreise & Kosten
Provision für Käufer
3,57%
Lage
Dobritz liegt im Dresdner Osten zwischen den Stadtteilen Striesen und Reick. Dobritz ist ein grüner Stadtteil, welcher an den innerstädtischen Vorstadtgürtel angrenzt. Auch die Nähe zum "Großen Garten" und die bei Dresden und Gästen sehr beliebte "Pferderennbahn" zeugen vom hohen Wohnwert in Dobritz. Neben vielfältigen...
Die Wohnung
Wohnungslage
3. Geschoss
Derzeitige Nutzung
vermietet
Wohnanlage
Energie & Heizung
Warum sehe ich diese Anzeige? – Du siehst diese Anzeige basierend auf Ihrer Navigation auf unserer Website und den Suchkriterien, die du verwendet hast.
Energieausweistyp
Verbrauchsausweis
Gebäudetyp
Wohngebäude
Baujahr laut Energieausweis
1970
Wesentliche Energieträger
FERNWAERME_DAMPF
Endenergieverbrauch
69,00 kWh/(m²·a)
Weitere Energiedaten
Energieträger
Fernwärme
Heizungsart
Zentralheizung
Details
Objektbeschreibung
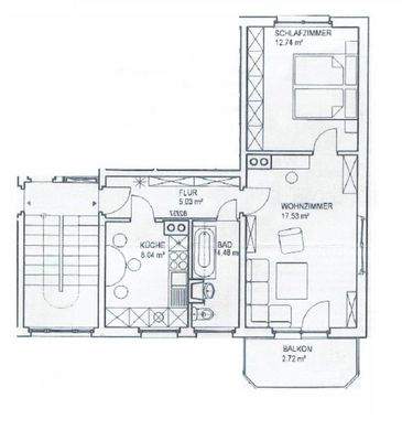
Zum Verkauf steht eine 2-Zimmer Eigentumswohnung in ruhiger Wohnlage von Dresden. Die Wohnanlage wurde 1970 massiv errichtet und 1995 modernisiert. Die Wohnung bietet auf circa 51 m2 Wohnfläche ein großes Wohnzimmer mit Zugang zum Balkon, eine separate Küche, ein Tageslichtbad mit Wanne und ein Schlafzimmer sowie ein Flur...
Ausstattung
+ 2 - Zimmer (vermietet)
+ 3. Obergeschoss
+ großer Balkon am Wohnzimmer
+ separate Küchen mit WM Anschluss
+ Tageslichtbad mit Wanne
+ Kellerabteil
+ gute ÖPNV-Anbindung
+ attraktive & grüne Wohnlage
Mieteinnahmen:
Kaltmiete (p.m.): 345,00 €
Hausgeld (p.m.): 264,00 €
Preisinformation
Nettokaltmiete: 345,00 EUR
Weitere Informationen
Sonstiges
Alle Angaben in diesem Exposé wurden nach bestem Wissen erstellt, erheben jedoch keinen Anspruch auf Richtigkeit und Vollständigkeit. Die Grundrisse sind nicht maßstabsgerecht und dienen lediglich der Veranschaulichung. Das vorliegende Exposé ist als unverbindliche Information zu verstehen und kann nicht als...
Anbieter der Immobilie
Online-ID: 2mu6258
Referenznummer: 2025-137
Finde Angebote wie dieses
Hier geht es zu unserem Impressum, den Allgemeinen Geschäftsbedingungen, den Hinweisen zum Datenschutz und nutzungsbasierter Online-Werbung.