
Evernest GmbH
Fabian Kwaßny
+49 ···
Nr. anzeigenPreise & Kosten
Provision für Käufer
3.57 inkl. MwSt.
Bei Abschluss eines notariellen Kaufvertrages ist eine Käuferprovision vom Käufer in Höhe von 3.57 % inkl. MwSt. aus dem Kaufpreis fällig.
Lage
Uchte ist ein gewachsener Ort im Landkreis Nienburg/Weser in Niedersachsen mit rund 5.400 Einwohnern auf etwa 91 Quadratkilometern. Die Lage zwischen den Naturparks Dümmer und Steinhuder Meer bietet ein naturnahes Umfeld, das sowohl Erholungssuchende als auch Berufspendler anspricht. Über die Bundesstraßen B61, B441 und B215...
Das Haus
Kategorie
Einfamilienhaus
Baujahr
1960
Energie & Heizung
Warum sehe ich diese Anzeige? – Du siehst diese Anzeige basierend auf Ihrer Navigation auf unserer Website und den Suchkriterien, die du verwendet hast.
Energieausweistyp
Bedarfsausweis
Gebäudetyp
Wohngebäude
Effizienzklasse
H
Endenergiebedarf
505,40 kWh/(m²·a)
Weitere Energiedaten
Energieträger
Öl
Details
Objektbeschreibung
So vielseitig wie das Leben selbst: Diese Liegenschaft passt sich Ihren Träumen an - und genau so sollte es auch sein! Willkommen in Ihrem neuen Zuhause, wo all Ihre Lieben mit einziehen können:
Dieses ansprechend geräumige und vielseitig nutzbare Einfamilienhaus in Höfen bei Uchte ist perfekt für Familien, die Wert...
Ausstattung
Die Highlights im Überblick:
- Ab sofort bezugsfrei
- Top-Quadratmeterpreis von nur ca. 1.070,00 €/m²
- Diverse Fenster + Haustüren im ca. 2024 erneuert
- Ruhige & idyllische Lage
- Vielseitige Nutzungsmöglichkeiten
- Großzügige Wohnfläche
- Ideale Raumaufteilung
- Als Ein-/Zweifamilienhaus...
Weitere Informationen
Stichworte
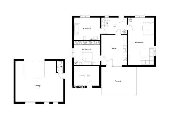
Parkhaus vorhanden, Anzahl der Schlafzimmer: 4, Anzahl der Badezimmer: 2, Anzahl der separaten WCs: 1, Anzahl Balkone: 1, Anzahl Terrassen: 1, Balkon-Terrassen-Fläche: 5,51 m², Gartenfläche: 100,00 m², 2 Etagen
Anbieter der Immobilie
Online-ID: 2mu6459
Referenznummer: L-8JAKGMJ
Finde Angebote wie dieses
Hier geht es zu unserem Impressum, den Allgemeinen Geschäftsbedingungen, den Hinweisen zum Datenschutz und nutzungsbasierter Online-Werbung.