INFINA Credit Broker GmbH

Herr Sebastian Scheuermann

Großzügiges Eckgrundstück in familienfreundlicher Wohngegend - mit bestehendem Gebäude - viel Potenzial !

€ 599.000
Kaufpreis
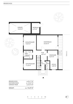
129,84 m²
Wohnfläche ca.
4
Zimmer
941 m²
Grundstücksfl. ca.
Finanzierung berechnen mit durchblicker

Der Anbieter dieses Objekts hat gegenüber der AVIV Germany GmbH als Betreiber dieses Online-Marktplatzes erklärt, nicht als Unternehmer im Sinne des § 1 KSchG zu handeln. Die im Verbraucherschutzrecht der Union verankerten Verbraucherrechte (insbesondere Informationspflichten und Rücktritts- bzw. Widerrufsrechte) finden auf den Vertrag zwischen dem Anbieter des Objekts und Ihnen (dem Interessenten) keine Anwendung.

Gewerblicher Anbieter

Der Anbieter dieses Objekts hat gegenüber der AVIV Germany GmbH als Betreiber dieses Online-Marktplatzes erklärt, als Unternehmer im Sinne des § 1 KSchG zu handeln.

AdresseStraße nicht freigegeben
3423 St. Andrä-Wördern 
Auf Karte ansehen

Preise & Kosten

Kaufpreis € 599.000 Preis/m² € 3.874,77

Provision für Käufer

provisionsfrei

Lage

Eingebettet zwischen Donau und Wienerwald bietet St. Andrä Wördern den perfekten Ort für Familien die in der Natur wohnen, aber die Nähe zur Stadt nicht missen möchten. Kindergärten, Volksschule und Einkaufsmöglichkeiten direkt vor Ort erleichtern den Alltag für die Kleinen (Bedürfnisse). Für alles Weitere ist man in ca. 6...

Mehr anzeigen

Das Haus

Kategorie

Einfamilienhaus

Baujahr

1981

  • Terrasse, Loggia
  • 1 Stellplatz: Garage
  • Bad mit Fenster, Wanne und Dusche, Gäste-WC
  • Einbauküche
  • Böden: Estrich, Fliesenboden, Parkett, Teppichboden
  • WG-geeignet

Energie & Heizung

Weitere Energiedaten

Haustyp

Fertighaus

Energieträger

Öl

Heizungsart

Zentralheizung

Details

Objektbeschreibung

Großzügiges Eckgrundstück in familienfreundlicher Lage - mit bestehendem Holzhaus und viel Potenzial! Auf 941 m² bietet Ihnen dieses großzügige Eckgrundstück vielfältige Möglichkeiten für die Verwirklichung Ihrer Wohnträume.
Ob Sie neu bauen , sanieren oder erweitern, das Grundstück teilen möchten - hier haben Sie alle...

Mehr anzeigen

Preisinformation

1 Garagenstellplatz

Weitere Informationen

Stichworte
Garage vorhanden, Süd-Balkon/Terrasse, Rolladen, Nutzfläche: 154,59 m², Anzahl der Badezimmer: 1, Anzahl der separaten WCs: 1, Anzahl Terrassen: 1, Anzahl Loggias: 2, Balkon-Terrassen-Fläche: 20,08 m², Gartenfläche: 795,76 m², Bundesland: Niederösterreich

Anbieter der Immobilie

Partner

INFINA Credit Broker GmbH

im Durchschnitt  5,00  Sterne
(bei 1 Bewertungen)

Brixner Straße 2/4, 6020 INNSBRUCK

Geschäftszeiten
user

Herr Sebastian Scheuermann

Dein Ansprechpartner

Anbieter-Profil Anbieter-Impressum

Online-ID: 2mu685c

Referenznummer: 42829

Finde Angebote wie dieses

imageimageimage

Günstige Immobilienfinanzierung einfach online berechnen

Persönliches Angebot berechnen

Hier geht es zu unserem Impressum, den Allgemeinen Geschäftsbedingungen, den Hinweisen zum Datenschutz und nutzungsbasierter Online-Werbung.