Version: 8.24.0Navigation überspringen
300.000 €
5 Zimmer  •  200 m²  •  800 m² Grundstück
Immowelt logo

Einfamilienhaus zum Kauf
300000 €
1.500 €/m²
5 Zimmer  •  200 m²  •  800 m² Grundstück

Attraktives EFH mit ELW auf großzügigem Grundstück und lichtdurchflutetem Wohnkonzept

Dieses im Jahr 1980 erbaute Einfamilienhaus bietet auf ca. 200?m² Wohnfläche über drei Ebenen ein durchdachtes Raumkonzept in ruhiger, naturnaher Lage.

Im Untergeschoss überzeugt der helle Wohnbereich mit offener Galerie und Kamin. Von hier gelangen Sie direkt auf die sonnige Westterrasse und in den weitläufigen Garten. Zwei Arbeitszimmer und ein Gästezimmer mit eigenem Duschbad ergänzen diese Ebene.

Das Obergeschoss verfügt über ein großzügiges Schlafzimmer mit Westbalkon, ein weiteres flexibel nutzbares Zimmer ebenfalls mit Balkonzugang sowie ein Bad mit Dusche und Wanne und ein Gäste-WC.

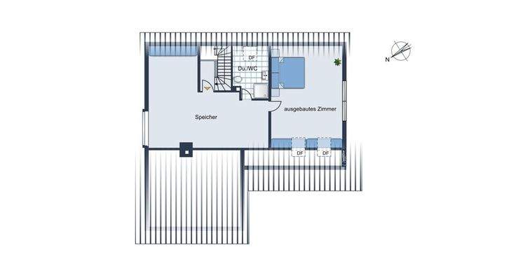
Im ausgebauten Dachgeschoss steht ein großer Raum mit eigenem Duschbad zur Verfügung - ideal als Atelier, Spielzimmer oder Rückzugsort.

Ein Gartenhaus mit überdachtem Zugang, eine Garage und ein Außenstellplatz runden das Angebot ab.

Die Immobilie wird als Kapitalanlage verkauft. Dadurch erwerben Sie die Immobilie zu einem reduzierten Kaufpreis. Die Eigentümer bewohnen weiter die Immobilie und zahlen eine monatliche Kaltmiete von 990 € . Sie sind 83 (Sie) und 85 (Er) Jahre alt.

Der aktuelle Marktwert der Immobilie beträgt lt. unabhängigem Gutachten 400.000,- €.

Der Kaufpreis der Immobilie beläuft sich auf 350.000,- €.

Wir weisen darauf hin, dass es sich hierbei um eine Kapitalanlage handelt, d.h. eine Selbstnutzung ist erst zu einem späteren Zeitpunkt möglich.

Merkmale

  • 800 m² Grundstück
  • Einbauküche
  • Keller
  • 2 Stellplätze: Garage, Außen-Stellplatz
  • Gäste-WC
  • Garten
  • Terrasse

Grundrisse

Grundrisse
1 / 3

Realisiere Dein Projekt

Bausubstanz und Energie

Energieausweis

F
  • Baujahr1980
  • Zustand der ImmobilieMassivhaus
  • HeizungsartOfen, Fußbodenheizung
  • EnergieträgerElektro, Solar, Holz
Immowelt logo

Preisdetails

Kaufpreis
300000 €
1.500 €/m²
Provision für Käufer
Die Käufercourtage beträgt 3,57 % inkl. MwSt. auf den Kaufpreis. inkl. MwSt.
Weitere Preisinformationen
1 Stellplatz
1 Garagenstellplatz
Geschätzte Gesamtkosten
327.210 €1
Kaufpreis
300.000 €
Notarkosten (1,5%)
4.500 €
Grunderwerbsteuer (3,5%)
10.500 €
Provision für Käufer (3,57%)
10.710 €
Grundbucheintrag (0,5%)
1.500 €
1Der angezeigte Wert ist eine automatisch berechnete Schätzung von immowelt.
2Bei den Angaben handelt es sich um ortsübliche Werte. Individuelle Kosten können abweichen.

Lage

address-icon
Pappenheim (91788)
Der Anbieter hat die genaue Adresse nicht freigegeben
Makrolage

Eingebettet in die sanften Hügel des Naturparks Altmühltal liegt Pappenheim eine charmante Stadt mit historischem Flair im mittelfränkischen Landkreis Weißenburg-Gunzenhausen. Die Region verbindet eine außergewöhnlich hohe Lebensqualität mit naturnaher Ruhe und guter Erreichbarkeit. Ob Berufspendler oder Naturliebhaber: Die zentrale Lage zwischen den Metropolregionen Nürnberg, Ingolstadt und Augsburg macht Pappenheim zu einem attraktiven Wohnort. Über die nahegelegene Bahnverbindung mit Knotenpunkt Treuchtlingen bestehen ausgezeichnete Anschlussmöglichkeiten nach München und Nürnberg.


Mikrolage

Die Immobilie liegt in einem gewachsenen Wohngebiet am ruhigen, grünen Nordrand von Pappenheim. Die Umgebung besticht durch gepflegte Einfamilienhäuser, weite Wiesen und idyllische Waldränder und bietet damit eine erholsame Wohnatmosphäre mit direktem Zugang zur Natur. Der historische Stadtkern mit kleinen Geschäften, Cafés, Bäckereien und einer Apotheke ist in wenigen Minuten zu Fuß oder mit dem Fahrrad erreichbar. Auch der nahegelegene Bahnhof gewährleistet eine zuverlässige Anbindung an das überregionale Bahnnetz. Familien profitieren von einer sehr guten Infrastruktur mit Schulen, Kindergärten, Spielplätzen sowie vielfältigen Sport- und Freizeitangeboten.

Weitere Informationen

Sonstiges WAS BEDEUTET VERKAUF MIT RÜCKMIETUNG?

Das Objekt wird vom Käufer zu 100 % erworben. Gleichzeitig wird im Kaufvertrag eine befristete Anmietung des Objekts durch den Verkäufer zu einem festgelegten Mietzins vereinbart. Die Verkäufer werden Mieter dieses Hauses. Der Mietvertrag wird als Anlage zum Kaufvertrag mit beurkundet. Die Eigenbedarfskündigung des Käufers wird ausgeschlossen. Verkäufer kann je nach Bedarf den Mietvertrag vorzeitig nach gesetzlicher Kündigungsfrist kündigen.

SIE HABEN INTERESSE?

Gerne steht Ihnen Ihr persönlicher Ansprechpartner für Fragen oder einen Besichtigungstermin zur Verfügung. Alle Kontaktdaten finden Sie auf der letzten Seite.


DISCLAIMER

Dieses Exposé ist eine Vorinformation, da als Rechtsgrundlage allein der notarielle Kaufvertrag maßgebend ist. Alle genannten Angaben zum Objekt beruhen auf Angaben des Eigentümers. Somit kann die giv GmbH für Richtigkeit und Vollständigkeit keine Haftung übernehmen. Die Grundrisszeichnungen in diesem Exposé sind nicht maßstabsgetreu und dienen lediglich der Vorabinformation. Stichworte West-Balkon/Terrasse, Anzahl der Schlafzimmer: 1, Anzahl der Badezimmer: 3, Anzahl der separaten WCs: 1, Anzahl Terrassen: 1, Anzahl der Wohneinheiten: 1, Bundesland: Bayern, 2 Etagen Sonstiges/Wohnen: Einliegerwohnung

Weitere Services

Lust auf eine Besichtigung?
Eine Frage zur Immobilie?
Nachricht hinzufügen
Mit der Nutzung der oben angegebenen Telefonnummer oder durch Klicken auf „Kontaktieren“ akzeptierst Du die Allgemeinen Nutzungsbedingungen, denen Du jederzeit widersprechen kannst. Weitere Informationen zum Datenschutz

Über den Anbieter

Kunigundenstr. 25, 80802 München
partner badge
3 Jahre Partnerschaft
Online-ID: 2mu6f5w
Referenznummer: HpR-N-SY371-AlFi
giv GmbH Immobilien & Vermögensplanung
giv GmbH Immobilien & Vermögensplanung
Bewertung: 4 von 5 Sternen
Nachricht hinzufügen
Mit der Nutzung der oben angegebenen Telefonnummer oder durch Klicken auf „Kontaktieren“ akzeptierst Du die Allgemeinen Nutzungsbedingungen, denen Du jederzeit widersprechen kannst. Weitere Informationen zum Datenschutz
Wie zufrieden bist du mit dieser Seite (nicht mit der Immobilie selbst)?