
s REAL Immobilienvermittlung GmbH
Herr Johannes Wiesinger
+43 ···
Nr. anzeigenPreise & Kosten
zzgl. Betriebskosten
Provision für Mieter
3.480,00 € inkl. 20% USt.
Warum sehe ich diese Anzeige? – Du siehst diese Anzeige basierend auf Ihrer Navigation auf unserer Website und den Suchkriterien, die du verwendet hast.
Büro-/Praxisfläche
Kategorie
Praxisfläche
Bezug
Sommer 2026
Energie & Heizung
Warum sehe ich diese Anzeige? – Du siehst diese Anzeige basierend auf Ihrer Navigation auf unserer Website und den Suchkriterien, die du verwendet hast.
Weitere Energiedaten
Energieträger
Elektro
Details
Objektbeschreibung
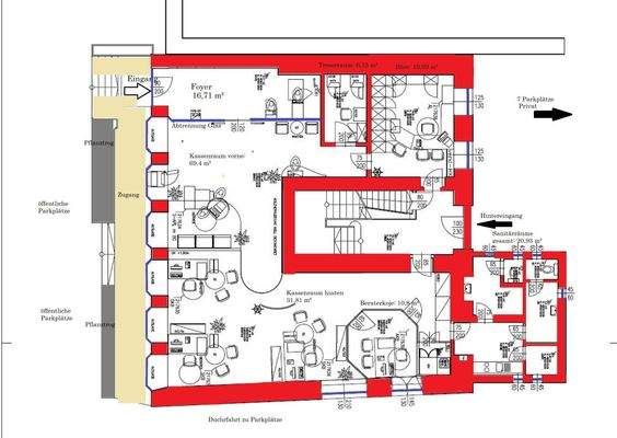
Diese attraktive Gewerbeimmobilie befindet sich in absoluter Bestlage direkt am Marktplatz von St. Peter in der Au und bietet ideale Voraussetzungen für einen erfolgreichen Unternehmensauftritt. Die großzügige Fläche im Erdgeschoss überzeugt durch ihre Vielseitigkeit und eignet sich perfekt für unterschiedlichste...
Preisinformation
7 Stellplätze
Nettokaltmiete: 1.450,00 EUR
Weitere Informationen
Stichworte
Nutzfläche: 175,49 m², Bundesland: Niederösterreich
Anbieter der Immobilie
s REAL Immobilienvermittlung GmbH
Landstraßer Hauptstraße 60, 1030 WIEN
Online-ID: 2mu7k5t
Referenznummer: OBGC20251223100827635842efecf9a
Finde Angebote wie dieses
Hier geht es zu unserem Impressum, den Allgemeinen Geschäftsbedingungen, den Hinweisen zum Datenschutz und nutzungsbasierter Online-Werbung.