
Dawonia Management GmbH
Maxi Frank
Kontaktiere den Anbieter schriftlich, es ist keine Telefonnummer hinterlegt.
Preise & Kosten
nicht in Warmmiete enthalten
Kaution
3.597,48
Warum sehe ich diese Anzeige? – Du siehst diese Anzeige basierend auf Ihrer Navigation auf unserer Website und den Suchkriterien, die du verwendet hast.
Lage
Die Wohnanlage befindet sich im Stadtteil Am Anger/Bruck. Die Entfernung zur Innenstadt beträgt weniger als 2 km. Das Objekt liegt verkehrsgünstig zur der Autobahnauffahrt A73. Nur 600 m von der Anlage entfernt ist eine Bushaltestelle. In direkter Umgebung befinden sich Geschäfte des täglichen Bedarfs, Ärzte, Kindergärten und...
Die Wohnung
Wohnungslage
3. Geschoss
Bezug
01.01.2026
Wohnanlage
Energie & Heizung
Warum sehe ich diese Anzeige? – Du siehst diese Anzeige basierend auf Ihrer Navigation auf unserer Website und den Suchkriterien, die du verwendet hast.
Energieausweistyp
Bedarfsausweis
Gebäudetyp
Wohngebäude
Baujahr laut Energieausweis
2022
Wesentliche Energieträger
Fernwärme
Effizienzklasse
B
Endenergiebedarf
61,90 kWh/(m²·a)
Weitere Energiedaten
Energieträger
Fernwärme
Heizungsart
offener Kamin, Zentralheizung
Details
Objektbeschreibung
Objektreferenz: 1043/2544/15
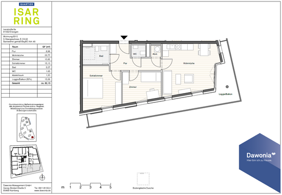
Die moderne 3-Zimmer-Wohnung befindet sich im 3. Obergeschoss eines 2022 erbauten Mehrfamilienhauses in einer gepflegten Wohnanlage.
Auf Wunsch kann ein Stellplatz im Parkhaus neben dem Haus für zusätzlich 50 € mtl. angemietet werden.
Ausstattung
Die Wohnung ist ausgestattet mit:
- Balkon (umlaufend um die Wohnung)
- Parkettboden
- Innenliegendes Bad mit ebenerdiger Dusche
- Gäste-WC
- Abstellraum in der Wohnung
- Waschmaschinen-Anschluss im Abstellraum
- Einbauküche mit Geschirrspüler, Backofen/Ceran-Kochfeld, Kühl-Gefrier-Kombination und...
Preisinformation
1 Parkhausstellplatz, Miete: 50,00 EUR
Weitere Informationen
Sonstiges
Unsere Mietverträge enthalten eine jährliche Erhöhung der Kaltmiete von 2 %.
HINWEIS ZUR BEWERBUNG:
Um Ihnen den bestmöglichen Service zu bieten, können Sie sich bei uns digital bewerben. Kopieren Sie den untenstehenden Link in die Adresszeile Ihres Browsers und folgen Sie der Anleitung.
...
Dokumente
Anbieter der Immobilie
Maxi Frank
Dein Ansprechpartner
Kontaktiere den Anbieter schriftlich, es ist keine Telefonnummer hinterlegt.
Online-ID: 2mu7l5t
Referenznummer: 1043/2544/15-RprQN
Finde Angebote wie dieses
Hier geht es zu unserem Impressum, den Allgemeinen Geschäftsbedingungen, den Hinweisen zum Datenschutz und nutzungsbasierter Online-Werbung.