

Immobilien Bergisches Land
Herr Michael Haybach
+49 ···
Nr. anzeigenPreise & Kosten
Kaution
2.040,00
Warum sehe ich diese Anzeige? – Du siehst diese Anzeige basierend auf Ihrer Navigation auf unserer Website und den Suchkriterien, die du verwendet hast.
Lage
Das gepflegte Mehrfamilienhaus befindet sich im Remscheider Südbezirk.
Die nähere Umgebung ist fast ausschließlich mit Wohnbebauung versehen.
Geschäfte des täglichen Bedarfs, eine gute ärztliche Versorgung und auch Kindergärten und Schulen befinden sich in der Nähe.
Remscheid ist eine kreisfreie Großstadt im...
Die Wohnung
Wohnungslage
2. Geschoss
Bezug
sofort
Derzeitige Nutzung
frei
Wohnanlage
Energie & Heizung
Warum sehe ich diese Anzeige? – Du siehst diese Anzeige basierend auf Ihrer Navigation auf unserer Website und den Suchkriterien, die du verwendet hast.
Energieausweistyp
Bedarfsausweis
Gebäudetyp
Wohngebäude
Baujahr laut Energieausweis
1962
Wesentliche Energieträger
GAS
Gültigkeit
28.08.2016 bis 27.08.2026
Effizienzklasse
E
Endenergiebedarf
150,90 kWh/(m²·a)
Weitere Energiedaten
Energieträger
Gas
Heizungsart
Zentralheizung
Details
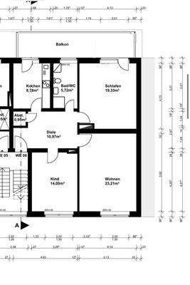
Objektbeschreibung
Zur Anmietung steht ab sofort eine modernisierte und renovierte Wohnung mit drei Zimmern, Küche, Diele und neuem Badezimmer sowie einem großen Balkon.
Aufgrund der Wohnfläche von ca. 85 m² und der guten Raumaufteilung ist diese Wohnung ideal für zwei bis maximal drei Personen.
Das Mehrfamilienhaus mit seinen 8...
Ausstattung
Beim Betreten der Wohnung gelangt man zunächst in eine große Eingangsdiele mit ausreichend Platz für eine Garaderobe. Ein kleiner Abstellraum für die nützlichen Dinge des Haushaltes ist hier ebenfalls vorhanden. Zur linken befindet sich die Küche und gleich daneben das Badezimmer mit Fenster. Das Badezimmer mit der modernen...
Weitere Informationen
Sonstiges
Mietpreis:
Kaltmiete 680,00 EUR.
Nebenkosten 220,00 EUR ,zuzüglich Strom.
Kaution: 3 Monatskaltmieten = 2.040,00 EUR.
Wir bitten um Verständnis dafür, dass Hundehaltung hier nicht erwünscht ist.
WIR BITTEN UM KONTAKTAUFNAHME PER EMAIL UNTER BEKANNTGABE IHRER PERSONEN- UND...
Anbieter der Immobilie
Immobilien Bergisches Land
Islandstraße 35-39, 42499 Hückeswagen

Online-ID: 2mu7q5y
Referenznummer: RSR28G
Finde Angebote wie dieses
Hier geht es zu unserem Impressum, den Allgemeinen Geschäftsbedingungen, den Hinweisen zum Datenschutz und nutzungsbasierter Online-Werbung.