Version: 8.24.0Navigation überspringen
Mietkosten auf Anfrage
2.100 m² Lagerfläche  •  teilbar ab 2.100 m²
Immowelt logo

Lagerhalle zur Miete • provisionsfrei
Mietkosten auf Anfrage
2.100 m² Lagerfläche  •  teilbar ab 2.100 m²

Lager- und Produktionsflächen

Merkmale

-Lager, Produktion im EG
-Büroflächen im OG mit Zugang zum Lager - müssen renoviert werden
-Alleinnutzung, Teilnutzung oder Weiterentwicklung zum multifunktonalen
-Gewerbestandort sind möglich - Nutzungsänderung liegt vor
-8 Anfahrrampen auf Nordseite
-Bühne mit 1.300 m² Nutzfläche kann verkleinert oder ausgebaut werden
-Hochregallager möglich
-PV-Anlage 420 kWP auf dem Dach
-LED-Beleuchtung
-zwei separate Anschlüsse ans Stromnetz vorhanden
-Stellplätze vorhanden
-Lager auch in abgetrennten Teilflächen mietbar (Gitterabtrennungen mit Schiebetor)
-Lastenaufzug
-Notstromaggregat

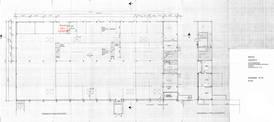
Grundrisse

Grundrisse
1 / 1

Realisiere Dein Projekt

Bausubstanz und Energie

Der Anbieter hat keine Informationen zu Energieverbrauch oder Zustand der Immobilie bereit gestellt.
Immowelt logo

Mietkosten

Miete auf Anfrage
Provision für Mieter
provisionsfrei
Kaution
keine Angabe

Lage

address-icon
Westerheim (87784)
Der Anbieter hat die genaue Adresse nicht freigegeben
Das Objekt befindet sich Am Heilig Kreuz 2 in einer ruhigen und dennoch zentral gelegenen Lage im Ortsteil Unterwesterheim. Das Umfeld ist geprägt von einer durchmischten Struktur aus Wohnen, Handwerk und kleingewerblichen Nutzungen, wodurch sich der Standort ideal für Lager- und Produktionsflächen eignet.
Durch die Lage am südöstlichen Ortsrand profitieren Betriebe von einer ruhigen, wenig störungsanfälligen Umgebung. Für Mitarbeiter bietet dies kurze Wege und ein attraktives Umfeld. Gleichzeitig sind über die nahegelegenen Auffahrten zur A96 (München-Lindau) sowie über das Autobahnkreuz Memmingen mit Anbindung an die A7 überregionale Ziele hervorragend erschlossen. Auch der Allgäu Airport Memmingen
ist nur rund 15 Minuten entfernt. Damit bietet die Adresse Am Heilig Kreuz 2 eine ausgewogene Kombination aus zentraler Ortslage, ruhigem Umfeld und sehr guter regionaler wie überregionaler Verkehrsanbindung - optimale Voraussetzungen für die Nutzung als Lager- und Produktions

Weitere Informationen

Sonstiges Haben Sie Ihre passende Bürofläche noch nicht gefunden ?
Nehmen Sie Kontakt mit unserem Vermietungsteam auf, um das passende Objekt für Sie zu finden.
**Die hier eingestellten Flächendefinitionen sind mit größter Sorgfalt recherchiert, erheben jedoch nicht Anspruch auf Alleingültigkeit und werden lediglich zu Informationszwecken zur Verfügung gestellt.
Bitte beachten Sie auch unsere rechtlichen Hinweise.

Weitere Services

Lust auf eine Besichtigung?
Eine Frage zur Immobilie?
Nachricht hinzufügen
Mit der Nutzung der oben angegebenen Telefonnummer oder durch Klicken auf „Kontaktieren“ akzeptierst Du die Allgemeinen Nutzungsbedingungen, denen Du jederzeit widersprechen kannst. Weitere Informationen zum Datenschutz

Über den Anbieter

Rotebühlplatz 17, 70178 Stuttgart
partner badge
Partnerschaft
Herr Manuel MackDein Kontakt
Online-ID: 2mu7s54
Referenznummer: 578
INLEASE Real Estate Advisory GmbH
Nachricht hinzufügen
Mit der Nutzung der oben angegebenen Telefonnummer oder durch Klicken auf „Kontaktieren“ akzeptierst Du die Allgemeinen Nutzungsbedingungen, denen Du jederzeit widersprechen kannst. Weitere Informationen zum Datenschutz
Wie zufrieden bist du mit dieser Seite (nicht mit der Immobilie selbst)?