

Maymar Real estate
Frau Yvette Boerner
003 ···
Nr. anzeigenPreise & Kosten
Provision für Käufer
provisionsfrei
Lage
Boutique-Wohnen am Meer in einer der begehrtesten Gegenden von Mojácar
Entdecken Sie eine außergewöhnliche Wohnanlage mit nur 10 exklusiven Häusern direkt am Strand der Gegend La Mena in Mojácar. Diese privilegierte Lage bietet direkten Zugang über den Paseo del Mediterraneo zu den goldenen Sandstränden und dem...
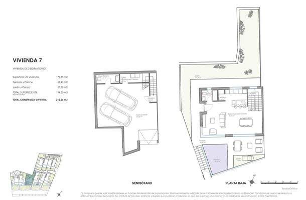
Das Haus
Baujahr
2025
Bezug
Erstbezug
Details
Objektbeschreibung
Elegante Häuser, die für Komfort und Meerblick konzipiert sind
Diese einzigartige Wohnanlage bietet Immobilien mit drei Schlafzimmern und drei Badezimmern in zwei Konfigurationen. Käufer können zwischen vier Reihenhäusern mit privatem Solarium und optionalem Whirlpool oder sechs Doppelhaushälften mit jeweils eigenem...
Weitere Informationen
Stichworte
Zustand: Erstbezug, neuwertig
Anbieter der Immobilie

Online-ID: 2mu875k
Referenznummer: SP1358
Finde Angebote wie dieses
Hier geht es zu unserem Impressum, den Allgemeinen Geschäftsbedingungen, den Hinweisen zum Datenschutz und nutzungsbasierter Online-Werbung.