

ISH Immobilien OHG
Herr Michael Tiedemann
041 ···
Nr. anzeigenPreise & Kosten
Provision für Käufer
3.57 % inkl. MwSt.
Lage
Die Stadt Bremervörde ist ein staatlich anerkannter Erholungsort im Norden des Landkreises Rotenburg (Wümme) in Niedersachsen und hat rund 19.000 Einwohner.
Direkt in Bremervörde sind alle Schulformen und gute Einkaufsmöglichkeiten vorhanden. Eine Grundschule und ein Kindergarten sind vor Ort. Die Kreisstadt Stade ist ca...
Das Haus
Kategorie
Einfamilienhaus
Baujahr
1973
Bezug
sofort
Energie & Heizung
Warum sehe ich diese Anzeige? – Du siehst diese Anzeige basierend auf Ihrer Navigation auf unserer Website und den Suchkriterien, die du verwendet hast.
Energieausweistyp
Bedarfsausweis
Gebäudetyp
Wohngebäude
Baujahr laut Energieausweis
1973
Wesentliche Energieträger
Gas
Gültigkeit
17.11.2025 bis 16.11.2035
Effizienzklasse
H
Endenergiebedarf
302,80 kWh/(m²·a)
Weitere Energiedaten
Energieträger
Gas
Heizungsart
Zentralheizung
Details
Objektbeschreibung
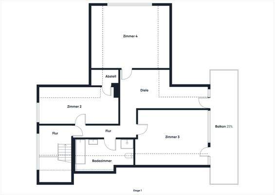
Zum Verkauf steht ein großzügiges Einfamilienhaus, das im Jahr 1973 erbaut wurde und sich auf einem weitläufigen Grundstück von 1540 m² erstreckt. Mit einer Wohnfläche von ca. 199 m² bietet dieses Haus ausreichend Platz für Familien und individuelle Wohnbedürfnisse. Das Objekt erstreckt sich über 1,5 Geschosse und verfügt...
Ausstattung
- Einbauküche
- 2 Tageslichtbäder mit Wanne u. Dusche
- Gäste-WC
- Kamin
- offene Treppe ins DG
- Keller
- Gasheizung
- Balkon
- Garage
- Terrasse
- Garten
- Gartenhaus
Preisinformation
1 Garagenstellplatz
Weitere Informationen
Sonstiges
Hinweis: Wir weisen höflich darauf hin, dass die hier gemachten Angaben ausschließlich auf den uns vom Eigentümer übermittelten Unterlagen und Daten basieren. Für die Richtigkeit und Vollständigkeit können wir keine Haftung übernehmen. Das Angebot ist freibleibend. Forderungen und Irrtümer...
Anbieter der Immobilie

Online-ID: 2mu9m59
Referenznummer: 4926
Finde Angebote wie dieses
Hier geht es zu unserem Impressum, den Allgemeinen Geschäftsbedingungen, den Hinweisen zum Datenschutz und nutzungsbasierter Online-Werbung.