
Werde Eigentümer GmbH
Herr Sebastian Ghesquier
+49 ···
Nr. anzeigenPreise & Kosten
Provision für Käufer
provisionsfrei
Lage
Die Liebigstraße , gelegen im beliebten Stadtteil Friedrichshain, ist eine pulsierende und vielseitige Straße, die für ihre lebendige Atmosphäre und ihre kulturelle Vielfalt bekannt ist.
Mit einer reichen Geschichte und einer Fülle von Freizeitmöglichkeiten bietet die angrenzende Rigaer Straße eine einzigartige Mischung...
Die Wohnung
Wohnungslage
Dachgeschoss
Energie & Heizung
Warum sehe ich diese Anzeige? – Du siehst diese Anzeige basierend auf Ihrer Navigation auf unserer Website und den Suchkriterien, die du verwendet hast.
Energieausweis: für diesen Gebäudetyp nicht notwendig
Details
Objektbeschreibung
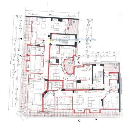
Das Angebot umfasst sowohl den Rohdachboden als auch die dazugehörige Baugenehmigung.
Diese sieht den Ausbau in Form von zwei 4-Zimmer-Wohnungen (ca. 105m²& 103m²) und einer 2-Zimmer-Wohnung (ca.75m²) vor. Die vorhandene Substanz bietet eine erstklassige Ausgangsbasis für einen professionellen DG- Ausbauer. Es kann nur...
Weitere Informationen
Stichworte
Bundesland: Berlin
Anbieter der Immobilie
Werde Eigentümer GmbH
Töpferwall 2a, 17207 Röbel/Müritz
Online-ID: 2mubl5z
Referenznummer: WE260109-02-WE19
Finde Angebote wie dieses
Hier geht es zu unserem Impressum, den Allgemeinen Geschäftsbedingungen, den Hinweisen zum Datenschutz und nutzungsbasierter Online-Werbung.