

Mosel Immobilien Center
Frau Mila Todorova
065 ···
Nr. anzeigenPreise & Kosten
Provision für Käufer
3,57 %
Lage
Die Lage unweit von der Fußgängerzone von Zell ist äußerst attraktiv. Hier in der historischen Zeller Altstadt gibt es unzählige Straßencafés, Lädchen, Restaurants und Weinlokale, die zum Bummeln und Verweilen einladen. Zell ist einer der schönsten und beliebtesten Urlaubsorte im Mittelmoseltal und verfügt über eine...
Das Haus
Kategorie
Mehrfamilienhaus
Baujahr
1950
Energie & Heizung
Warum sehe ich diese Anzeige? – Du siehst diese Anzeige basierend auf Ihrer Navigation auf unserer Website und den Suchkriterien, die du verwendet hast.
Weitere Energiedaten
Energieträger
Öl
Heizungsart
Zentralheizung
Details
Objektbeschreibung
Aufteilung:
EG:
Nr.24 (rechts): Eingang zu den Wohnungen, Schaufenster, Mülltonnen-Raum, Toilette, Laden
Hintergebäude: Keller
Nr. 26 (links): "Ela's Laden"
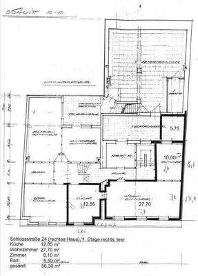
OG:
Nr. 24: Wohnung 1 (ca. 62 m²)
Nr. 26: Wohnung 2 (ca. 65 m²)
Hintergebäude "Ela´s Laden" mit zusätzlicher Ladenfläche, mit Ausgang zu...
Ausstattung
Innen:
Öl-Zentralheizung von 2016, Bodenbelag: Fliesen, PVC, Laminat, Parkett. Doppelt verglaste Kunststoff-Fenster (2024).
Aussen:
Dacheindeckung: Kunst- und Naturschiefer, 2 Garagen plus Nebenraum.
Preisinformation
3 Garagenstellplätze
Weitere Informationen
Sonstiges
Die Höhe der Courtage richtet sich nach den ab dem 23.12.2020 in Kraft getretenen gesetzlichen Regelungen zur Teilung der Maklercourtage. Hiernach wird die Courtage regelmäßig für beide Parteien (Eigentümer und Käufer) fällig. Sie beträgt 3,57 % des Kaufpreises einschließlich Umsatzsteuer und wird mit notariellem...
Anbieter der Immobilie
Mosel Immobilien Center
Balduinstr. 73, 56856 Zell (Mosel)

Online-ID: 2mude57
Referenznummer: 2124a
Finde Angebote wie dieses
Hier geht es zu unserem Impressum, den Allgemeinen Geschäftsbedingungen, den Hinweisen zum Datenschutz und nutzungsbasierter Online-Werbung.