
Platzhirsch Wohnimmobilien GmbH
Firma Platzhirsch Wohnimmobilien GmbH
004 ···
Nr. anzeigenPreise & Kosten
Provision für Käufer
Käufercourtage: 3,57 % inkl. 19 % MwSt.
Verkäufercourtage: 3,57 % inkl. 19 % MwSt.
Lage
Sehr ruhig in einem Wohngebiet gelegen.
Das Haus
Kategorie
Einfamilienhaus
Baujahr
2006
Derzeitige Nutzung
vermietet
Energie & Heizung
Warum sehe ich diese Anzeige? – Du siehst diese Anzeige basierend auf Ihrer Navigation auf unserer Website und den Suchkriterien, die du verwendet hast.
Energieausweistyp
Verbrauchsausweis
Gebäudetyp
Wohngebäude
Baujahr laut Energieausweis
2006
Wesentliche Energieträger
GAS
Gültigkeit
bis 03.12.2035
Effizienzklasse
A+
Endenergieverbrauch
20,10 kWh/(m²·a)
Weitere Energiedaten
Energieträger
Gas
Details
Objektbeschreibung
Diese Wohnimmobilie ist in einem ruhigen Wohngebiet in Zetel gelegen und derzeit vermietet.
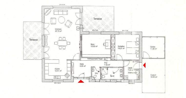
Auf einer Wohnfläche von ca. 124 m² bietet das Wohnhaus eine geräumige Diele, an die sich das großzügige Wohnzimmer anschließt. Ein Kaminofen sorgt im Winter für wohlige Wärme und ist im Kaufpreis enthalten. Der offene Küchenbereich...
Ausstattung
- Kaminofen
- Fußbodenheizung im gesamten Objekt
- zwei Terrassen (Westen und Süden)
- Satellitenanlage
- Solarpaneel zur Warmwasserbereitung
- Carport mit Geräteraum
- Sämtliche Fenster mit 3-fach Verglasung
- Sämtliche Fenster mit Außenrollläden
Preisinformation
1 Carportplatz
Weitere Informationen
Sonstiges
Die Immobilie ist seit dem 01.03.2016 vermietet!
Stichworte
Carport vorhanden, Nutzfläche: 32,00 m², Anzahl der Schlafzimmer: 2, Anzahl der Badezimmer: 1, nur Nichtraucher
Anbieter der Immobilie
Platzhirsch Wohnimmobilien GmbH
August-Niemann-Straße 34, 26203 Wardenburg
Online-ID: 2mudh5t
Referenznummer: OL 1414
Finde Angebote wie dieses
Hier geht es zu unserem Impressum, den Allgemeinen Geschäftsbedingungen, den Hinweisen zum Datenschutz und nutzungsbasierter Online-Werbung.