
Bien-Zenker GmbH - Markus Gerstung
Herr Markus Gerstung
+49 ···
Nr. anzeigenPreise & Kosten
Provision für Käufer
nein
Lage
Dieses sehr schön in der Ortsmitte gelegene Grundstück ist eben und kann ortsüblich mit einem Einfamilienhaus bebaut werden.
Marksuhl ist ein Ortsteil der Gemeinde Gerstungen im Wartburgkreis in Thüringen und liegt im Zentrum des Wartburgkreises, ca. 15 Kilometer südlich von Eisenach.
Für die Schüler aus...
Das Haus
Kategorie
Einfamilienhaus
Energie & Heizung
Warum sehe ich diese Anzeige? – Du siehst diese Anzeige basierend auf Ihrer Navigation auf unserer Website und den Suchkriterien, die du verwendet hast.
Weitere Energiedaten
Haustyp
KfW 55
Heizungsart
Luft-/Wasser-Wärmepumpe
Details
Objektbeschreibung
EVOLUTION 122 hat viele unterschiedliche Gesichter. Ganz modern ausgeführt in einer Variante mit hohem Kniestock,
25° Satteldach und vielen Fensterflächen oder ebenfalls zeitgemäß interpretiert als Flachdach-Planungsvorschlag mit
einem Querhauselement und Terrassenbalkon. Es geht allerdings auch anders: mediterran mit...
Ausstattung
Wir erstellen Ihr Haus komplett bezugsfertig, deshalb sind folgende Leistungen in diesem Haus enthalten:
- Ausführung als förderfähiges Effizienzhaus 55, nach Ihrer Wahl selbstverständlich auch als Effizienzhaus 40 oder 40 plus,
- Inklusive Wohlfühl-Klima-Heizung mit Kühlfunktion
- Inklusive Bodenplatte mit...
Weitere Informationen
Sonstiges
Im angegebenen Preis für dieses projektierte Haus ist das Grundstück, welches Sie direkt von Dritten erwerben, bereits enthalten. Das Angebot ist unverbindlich und freibleibend, exklusive der Baunebenkosten wie z.B. Hausanschlüsse, Außenanlagen, Notar- und Gerichtskosten.
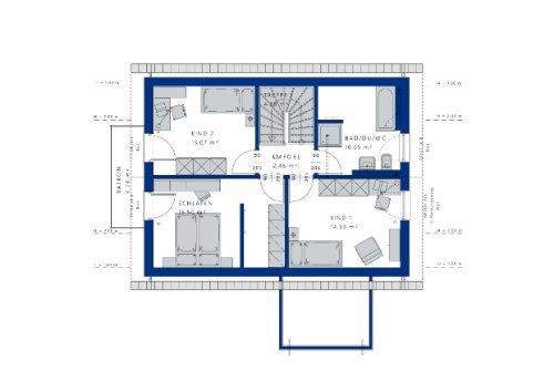
Abbildungen und Grundrisse zeigen...
Anbieter der Immobilie
Bien-Zenker GmbH - Markus Gerstung
Brunnhartshausen 30, 36466 Dermbach
Online-ID: 2muds5r
Referenznummer: 12341-13490
Finde Angebote wie dieses
Hier geht es zu unserem Impressum, den Allgemeinen Geschäftsbedingungen, den Hinweisen zum Datenschutz und nutzungsbasierter Online-Werbung.