
TAG Wohnen & Service GmbH
Frau Katrin Reckling
+49 ···
Nr. anzeigenPreise & Kosten
Kaution
520,00 €
Warum sehe ich diese Anzeige? – Du siehst diese Anzeige basierend auf Ihrer Navigation auf unserer Website und den Suchkriterien, die du verwendet hast.
Lage
Das Objekt liegt im zentral gelegenen Stadtteil Bernsdorf. Abwechslungsreiche Architektur prägt diesen Stadtteil mit über 600-jähriger Geschichte. Die Anbindung an das öffentliche Verkehrsnetz sowie vielseitige Einkaufsmöglichkeiten und Apotheken sind fußläufig erreichbar. Zur Technischen Universität Chemnitz sind es nur...
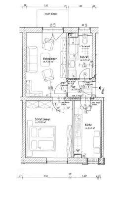
Die Wohnung
Wohnungslage
1. Geschoss (Erdgeschoss)
Bezug
nach Absprache
Wohnanlage
Energie & Heizung
Warum sehe ich diese Anzeige? – Du siehst diese Anzeige basierend auf Ihrer Navigation auf unserer Website und den Suchkriterien, die du verwendet hast.
Energieausweis: für diesen Gebäudetyp nicht notwendig
Details
Objektbeschreibung
Die sanierten Denkmal-Wohnhäuser in der Wohnanlage laden mit Ihrem großen und grünen Innenhof zum Relaxen und Sonnen ein. Die Häuser besitzen 3 Vollgeschosse und sind unterkellert. Geparkt wird an der Straße. Eine moderne und zeitgemäße Innenausstattung der Wohnungen, Balkone in den Innenhof sowie die sehr ruhige Lage sorgen...
Ausstattung
- neuer PVC Fußbodenbelag in Holzoptik
- Raufaser weiß
- Balkon
- Bad mit Wanne
- Lage: Erdgeschoss
- preiswertes TV über Antennengemeinschaft
- Highspeed-Internet möglich (Glasfaser der Telekom)
- Keller- und Bodenabteil kostenfrei während Mietzeit
- Stellplätze am Objekt kostenfrei
Bilder sind...
Preisinformation
Nettokaltmiete: 260,00 EUR
Weitere Informationen
Sonstiges
Finden Sie Ihr neues Zuhause unter www.tag-wohnen.de und vereinbaren Sie Ihren persönlichen Besichtigungstermin. Wir freuen uns auf Ihre Anfrage.
Profitieren Sie als TAG Wohnen-Mieter von unseren Partnerangeboten und sichern Sie sich viele Sonderrabatte und günstige Konditionen u.a. in den Bereichen...
Anbieter der Immobilie
Online-ID: 2mueu5k
Referenznummer: 2029/50397/1071
Finde Angebote wie dieses
Hier geht es zu unserem Impressum, den Allgemeinen Geschäftsbedingungen, den Hinweisen zum Datenschutz und nutzungsbasierter Online-Werbung.