

Tryonadt-Immobilien
Frau Claudia Tryonadt
033 ···
Nr. anzeigenPreise & Kosten
Provision für Käufer
3,57 % inkl. gesetzl. MwSt
Lage
Das Reihenendhaus befindet sich in einer ruhigen, gepflegten Wohnlage im Berliner Ortsteil Lichtenrade (Bezirk Tempelhof-Schöneberg). Die Umgebung ist geprägt von Reihen- und Einfamilienhäusern sowie grünen Vorgärten und baumgesäumten Straßen.
Einkaufsmöglichkeiten des täglichen Bedarfs, Apotheken, Ärzte und...
Das Haus
Kategorie
Reihenendhaus
Baujahr
1919
Energie & Heizung
Warum sehe ich diese Anzeige? – Du siehst diese Anzeige basierend auf Ihrer Navigation auf unserer Website und den Suchkriterien, die du verwendet hast.
Energieausweistyp
Verbrauchsausweis
Gebäudetyp
Wohngebäude
Baujahr laut Energieausweis
1919
Wesentliche Energieträger
ERDWAERME
Gültigkeit
03.09.2025 bis 02.09.2035
Effizienzklasse
D
Endenergieverbrauch
127,20 kWh/(m²·a)
Weitere Energiedaten
Energieträger
Erdwärme
Heizungsart
Zentralheizung
Details
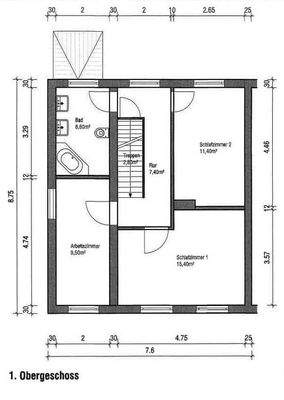
Objektbeschreibung
BEZUGSFREI AB SPÄTSOMMER 2027
Dieses charmante Reihenendhaus überzeugt durch eine durchdachte Raumaufteilung, den gepflegten Zustand und bereits erfolgten Modernisierungen.
Im Erdgeschoss erwarten Sie ein Wohnzimmer und ein Esszimmer, die offen miteinander verbunden sind und ein harmonisches Wohngefühl schaffen...
Weitere Informationen
Stichworte
Bürofläche: 63,50 m², Sonstige Fläche: 483,00 m², Anzahl der Schlafzimmer: 4, Anzahl der Badezimmer: 3, Anzahl Balkone: 1, Anzahl der Wohn-Schlafzimmer: 5,5, 2 Etagen, modernisiert: 1993
Anbieter der Immobilie
Tryonadt-Immobilien
Am Bahnhof 6a, 15831 Mahlow

Online-ID: 2mufg53
Referenznummer: FTI 3692
Finde Angebote wie dieses
Hier geht es zu unserem Impressum, den Allgemeinen Geschäftsbedingungen, den Hinweisen zum Datenschutz und nutzungsbasierter Online-Werbung.