
ohne-makler.net - Immobilien selbst vermarkten
Angebot von marcel jamborek
Kontaktiere den Anbieter schriftlich, es ist keine Telefonnummer hinterlegt.
Preise & Kosten
Provision für Käufer
provisionsfrei
Lage
Das Objekt befindet sich in einer ruhigen Fahrradstraße sehr zentral gelegen.
Infrastruktur (im Umkreis von 5 km):
Apotheke, Lebensmittel-Discount, Allgemeinmediziner, Kindergarten, Grundschule, Hauptschule, Realschule, Gymnasium, Gesamtschule, Öffentliche Verkehrsmittel
Die Wohnung
Wohnungslage
Erdgeschoss
Bezug
sofort
Wohnanlage
Energie & Heizung
Warum sehe ich diese Anzeige? – Du siehst diese Anzeige basierend auf Ihrer Navigation auf unserer Website und den Suchkriterien, die du verwendet hast.
Energieausweistyp
Bedarfsausweis
Gebäudetyp
Wohngebäude
Effizienzklasse
A
Endenergiebedarf
28,00 kWh/(m²·a)
Weitere Energiedaten
Heizungsart
Fußbodenheizung, Luft-/Wasser-Wärmepumpe
Details
Objektbeschreibung
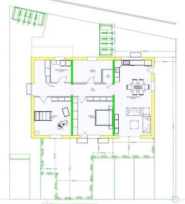
Die Erdgeschosswohnung verteilt sich über die komplette Etage des 3-Familienhauses.
Es handelt sich um ein energiesparende Massivbauweise mit Fußbodenheizung und 3-Fach verglasten Fenstern. Die moderne Wärmepume wird von einer Photovoltaik-Anlage unterstützt, diese versorgt auch den Allgemeinstrom, wodurch niedrige...
Ausstattung
Terrasse, Garten, Keller, Vollbad, Gäste-WC, Barrierefrei, Fliesen
Bemerkungen:
Die Wohnung ist modern und Hochwertig. Sie besticht durch ein helles und sonniges Wohngefühl. Zur Wohnung gehört eine große Südterrasse mit Garten, sowie eine Grünfläche hinter dem Haus. Eine Barrierefreien Ausbau ist möglich.
Beim...
Preisinformation
2 Stellplätze
Weitere Informationen
Sonstiges
Heizungsart: Fußbodenheizung
Energieträger: Luft-/Wasserwärme
Wir bieten optional Smarthome, digitale Türsysteme, besondere Wand oder Bodenbeläge, eigene PV-Anlage um noch mehr Energiekosten zu sparen. Sie bekommen das alles aus einer Hand und müssen hierfür nicht ihre kostbare Zeit opfern. Das...
Anbieter der Immobilie
ohne-makler.net - Immobilien selbst vermarkten
Humboldtstr. 25 A, 21509 Glinde
Angebot von marcel jamborek
Dein Ansprechpartner
Kontaktiere den Anbieter schriftlich, es ist keine Telefonnummer hinterlegt.
Online-ID: 2mugg5x
Referenznummer: 418042
Finde Angebote wie dieses
Hier geht es zu unserem Impressum, den Allgemeinen Geschäftsbedingungen, den Hinweisen zum Datenschutz und nutzungsbasierter Online-Werbung.