EINZIGARTIG 3 ZI.-WOHNUNG MIT CA. 70QM TERRASSE IN CHARMANTER GRÜNDERZEITVILLA AUF GROßEM GRUNDSTÜCK
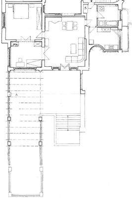
Zum Verkauf steht ein einzigartige 3 Zimmer Wohnung mit ca. 101,17 m² stilvoller Wohnfläche im Erdgeschoss.
Die Wohnungt verfügt über einen Eingangsbereich, eine Küche, ein Badezimmer, einem Arbeitszimmer (beheizter Wintergarten) mit großer Glasfront mit Blick in den Garten, ein Schlafzimmer sowie einem großen Wohn- und Esszimmer mit Zugang zur ca. 70 qm großen Sonnenterrasse und Zugang zum Garten.
Die Wohnung ist seit Mai 2003 vermietet. Die Nettoklatmiete im Monat beträgt derzeit 649,15 EUR.
Die Wohnung befindet sich in einer einzigartigen und stillvollen Gründerzeit-Villa ca. aus dem Jahr 1902. Die Villa steht unter Denkmalschutz.
Sie wurde damals als herrschaftliche Fabrikantenvilla errichtet und ca. im Jahr 2006 aufgeteilt. In der gesamten Villa sowie in den einzelnen Wohneinheiten hat man versucht, eine Vielzahl an Details im Originalzustand zu erhalten.
Vor allem das parkähnliche Grundstück, sowie die einzigartige ca. 70 qm große Sonnenterrasse sind ein absolutes Highlight.
Insgesamt befinden sich die Villa und die Wohneinheiten in einem sehr gepflegten Gesamtzustand. Laut Protokollen wird über eine Renovierung der Fassade und Teile des Daches nachgedacht.
Auf dem Grundstück befinden sich zusätzlich noch ein Doppelhaus sowie eine geschlossene Garage, welche bereits verkauft wurden.
Haben Sie Interesse? Dann senden Sie die Objekt-Id 54997-2 per WhatsApp oder Signal an 01525 681 3907, per Telegram an VonoviaVerkauf oder per Threema an *VONOVIA.
Details zur Datenverarbeitung bei Vonovia finden SIe unter www.vonovia.de/datenschutz.
Merkmale
vermietet
Erdgeschoss
Kelleranteil
Terrasse
Denkmalschutz-Afa
Die Wohnung verfügt über Parkett, stilvolle denkmalgeschützte Einbauschränke, einen großen Balkon sowie über einen Wintergarten.
Grundrisse
Grundrisse
1 / 1
Realisiere Dein Projekt
Bausubstanz und Energie
Energieausweis
Ein Energieausweis ist für diesen Gebäudetyp nicht notwendig.
Baujahr1902
Zustand der ImmobilieGepflegt
EnergieträgerGas
Preisdetails
Kaufpreis
339000 €339.000 €
3.350,80 €/m²
Provision für Käufer
provisionsfrei
Weitere Preisinformationen
Ist-Mieteinnahmen pro Monat: 649,15 EUR
Geschätzte Gesamtkosten
364.425 €1
Kaufpreis
339.000 €
Kaufnebenkosten
25.425 €
2
Notarkosten (1,5%)
5.085 €
Grunderwerbsteuer (5,5%)
18.645 €
Grundbucheintrag (0,5%)
1.695 €
1Der angezeigte Wert ist eine automatisch berechnete Schätzung von immowelt.
2Bei den Angaben handelt es sich um ortsübliche Werte. Individuelle Kosten können abweichen.
Lage
Bahnhofstraße 25, Leuben, Dresden (01259)
Dresden-Niedersedlitz befindet sich im südöstlichen Teil der Landeshauptstadt und überzeugt durch seine ruhige, grüne Lage bei gleichzeitig hervorragender Anbindung an die Dresdner Innenstadt. Das Stadtviertel ist geprägt von einer gewachsenen Infrastruktur mit guter Nahversorgung, Schulen und Kindergärten in direkter Umgebung. Die Verkehrsanbindung ist durch die S-Bahn sowie mehrere Bus- und Straßenbahnlinien ausgezeichnet in ca. 20 Minuten erreicht man bequem das Dresdner Stadtzentrum. Für Erholung und Freizeit bietet der Stadtteil unmittelbare Nähe z.B. zum Gebergrund sowie dem Schlosspark Lockwitz, die zu Spaziergängen oder zum Entspannen im Grünen einladen. Insgesamt bietet Niedersedlitz eine attraktive Mischung aus städtischem Komfort und naturnahem Wohnen ideal für Familien, Berufspendler und Ruhesuchende gleichermaßen.
Weitere Informationen
Sonstiges
Baudenkmal: Gem. § 16 Abs.5 der EnEV 2014 ist das Gebäude von der Pflicht zur Erstellung eines Energieausweises befreit. Er liegt nicht vor.
Stichworte
Anzahl Terrassen: 1, 3 Etagen