
WVS Immobilien GmbH
WVS Immobilien GmbH Herrn H. Weinmann
+49 ···
Nr. anzeigenPreise & Kosten
Provision für Käufer
3,57 % inkl. 19% MwSt.
Lage
72141 Walddorfhäslach
Direkt neben der B27 Tübingen-Stuttgart gelegen, ist dieses attraktive Wohn- und Geschäftshaus bestens an die Region angebunden. In 15 bis 30 Fahrminuten ist man in Tübingen, Reutlingen und im Zollernalbkreis oder am Flughafen Stuttgart, auf der A8 nach München oder Karlsruhe - oder eben in Stuttgart...
Büro-/Praxisfläche
Kategorie
Bürogebäude
Baujahr
2002
Bezug
01.01.2026
Energie & Heizung
Warum sehe ich diese Anzeige? – Du siehst diese Anzeige basierend auf Ihrer Navigation auf unserer Website und den Suchkriterien, die du verwendet hast.
Wärme
Strom
Energieausweistyp
Verbrauchsausweis
Gebäudetyp
Nicht-Wohngebäude
Baujahr laut Energieausweis
2002
Wesentliche Energieträger
Öl
Gültigkeit
18.06.2024 bis 18.06.2034
Endenergieverbrauch (Wärme)
83,00 kWh/(m²·a) - Warmwasser enthalten
Endenergieverbrauch (Strom)
111,00 kWh/(m²·a) - Warmwasser enthalten
Weitere Energiedaten
Energieträger
Öl
Heizungsart
Zentralheizung
Details
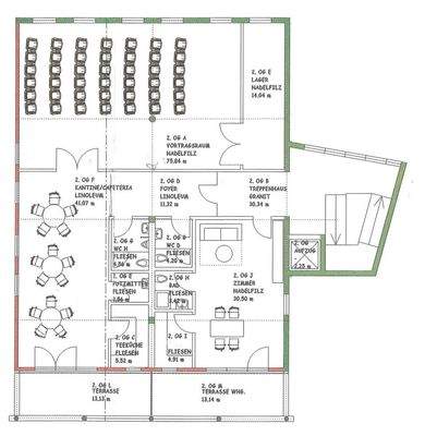
Objektbeschreibung
Das im Jahr 2002 errichtete Gebäude überzeugt durch eine moderne Architektur und eine flexible Nutzbarkeit. Ein Aufzug ist derzeit nicht vorhanden, kann jedoch bei Bedarf problemlos nachgerüstet werden. Teilbereiche des Gebäudes sind klimatisiert. Vor dem Objekt stehen aktuell rund 20 Parkplätze zur Verfügung.
Die...
Ausstattung
Objekthighlights:
* Nutzfläche: ca. 750 m² auf 3 Etagen
* Jede Etage separat nutzbar: autarke Einheiten mit eigener Teeküche, Serverraum sowie Damen- und
Herren-WC
* Barrierefreiheit möglich: vorgesehener Aufzugsschacht für nachträglichen Einbau eines
Personenaufzugs
* Repräsentatives...
Preisinformation
10 Stellplätze
2 Garagenstellplätze
Weitere Informationen
Sonstiges
Alle Angaben nach bestem Wissen. Irrtum und Zwischenverkauf vorbehalten. Der Käufer zahlt im Erfolgsfall an die Firma WVS Weinmann-Vermittlungs-Service GmbH eine Käufer-Maklerprovision in Höhe von 3,57% inkl. 19% MwSt. Die Provision errechnet sich aus dem beurkundeten Kaufpreis. Dieses Exposé ist eine...
Dokumente
Anbieter der Immobilie

WVS Immobilien GmbH
Online-ID: 2mugn5k
Referenznummer: 5055 (1/416)
Finde Angebote wie dieses
Hier geht es zu unserem Impressum, den Allgemeinen Geschäftsbedingungen, den Hinweisen zum Datenschutz und nutzungsbasierter Online-Werbung.