

IFC Immobiliengesellschaft mbH
Herr Paul-Ludwig Blümel
034 ···
Nr. anzeigenPreise & Kosten
Provision für Käufer
Die Provision beträgt 3,5 % vom Kaufpreis (zzgl. der geltenden MwSt.).
Das Haus
Kategorie
Einfamilienhaus
Baujahr
1997
Energie & Heizung
Warum sehe ich diese Anzeige? – Du siehst diese Anzeige basierend auf Ihrer Navigation auf unserer Website und den Suchkriterien, die du verwendet hast.
Weitere Energiedaten
Energieträger
Gas
Details
Ausstattung
Ausstattung
Baujahr:
ca. 1997
Raumaufteilung:
Erdgeschoss:
Wohnzimmer mit Erker und Zugang zur Terrasse, Küche, Hauswirtschaftsraum, Gäste-WC, Diele
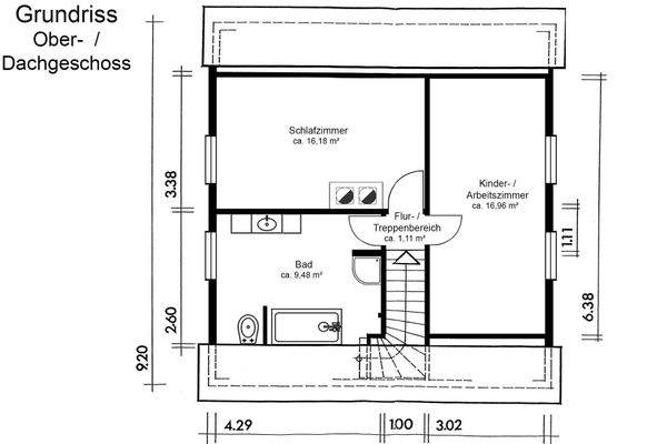
Ober- / Dachgeschoss:
2 Zimmer, Bad, Flur
Wohnfläche:
ca. 110 m²
Grundstück:
ca. 599 m²
Ausstattung /...
Weitere Informationen
Extras:
- Doppelgarage mit Werkstatt (ca. 56 m²) und elektrischem Tor
- gepflegtes Grundstück
Erschließung:
Strom, Wasser, Erdgas, Kanalisation, SAT-Anlage, Brunnenanschluss, Telefon, Internet
Sonstiges:
Um der EnEV § 17 genüge zutun, werden wir bei Besichtigung des Objektes, eine Kopie eines...
Dokumente
Anbieter der Immobilie

Online-ID: 2mugt5k
Referenznummer: 2033
Finde Angebote wie dieses
Hier geht es zu unserem Impressum, den Allgemeinen Geschäftsbedingungen, den Hinweisen zum Datenschutz und nutzungsbasierter Online-Werbung.