

Immobilien Gesellschaft mbH der Frankfurter Volksbank Rhein/Main
Herr Timo Wanik
061 ···
Nr. anzeigenPreise & Kosten
Provision für Käufer
3,57% inkl. MwSt.
Wir haben einen provisionspflichtigen Maklervertrag mit dem Verkäufer in gleicher Höhe abgeschlossen.
Lage
Bieber ist ein ruhig gelegener Stadtteil der südhessischen Stadt Offenbach am Main und liegt an dem Bach Bieber, einem Nebenfluss der Rodau.
Über die Bundesstraße 448 gibt es eine schnelle Anbindung an die Bundesstraße 45 und die Bundesautobahn 3. Bieber liegt in der Nähe des Frankfurter Flughafens, des Frankfurter...
Das Haus
Kategorie
Reihenmittelhaus
Baujahr
1974
Energie & Heizung
Warum sehe ich diese Anzeige? – Du siehst diese Anzeige basierend auf Ihrer Navigation auf unserer Website und den Suchkriterien, die du verwendet hast.
Energieausweistyp
Bedarfsausweis
Gebäudetyp
Wohngebäude
Baujahr laut Energieausweis
1974
Wesentliche Energieträger
GAS
Gültigkeit
bis 06.08.2035
Effizienzklasse
E
Endenergiebedarf
147,70 kWh/(m²·a)
Weitere Energiedaten
Energieträger
Gas
Heizungsart
Zentralheizung
Details
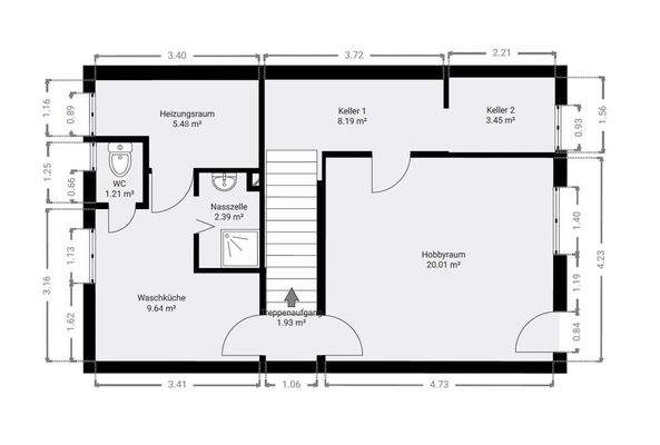
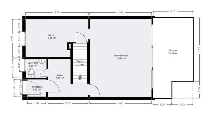
Objektbeschreibung
In ruhiger Lage von Offenbach-Bieber befindet sich dieses gepflegte Reihenmittelhaus mit einer Wohnfläche von ca. 148 m² auf einem ca. 160 m² großen Grundstück. Das Haus erstreckt sich über drei Etagen und bietet ausreichend Platz für Familien oder Paare mit erhöhtem Raumbedarf. Im Erdgeschoss befindet sich ein großzügiges...
Weitere Informationen
Sonstiges
Gerne stehen wir Ihnen für ein Beratungs- und Besichtigungstermin zur Verfügung.
Sie möchten selbst eine Immobilie verkaufen?
Wir ermitteln einen seriösen und marktgerechten Wert Ihrer Immobilie. Mit einem individuell für Sie abgestimmten Vermarktungsplan optimieren wir die Verkaufschancen. Als...
Anbieter der Immobilie
Immobilien Gesellschaft mbH der Frankfurter Volksbank Rhein/Main
Seligenstädter Str. 52, 63179 Obertshausen

Online-ID: 2muk35y
Referenznummer: 12056
Finde Angebote wie dieses
Hier geht es zu unserem Impressum, den Allgemeinen Geschäftsbedingungen, den Hinweisen zum Datenschutz und nutzungsbasierter Online-Werbung.