
Living Fertighaus GmbH - Denny Wedell
Herr Denny Wedell
+49 ···
Nr. anzeigenPreise & Kosten
Provision für Käufer
Bitte beachte, das Angebot kann bei Vertragsabschluss die Zahlung einer Provision beinhalten. Weitere Informationen erhältst Du vom Anbieter.
Lage
Das Grundstück für dieses Hausprojekt befindet sich in Wandlitz - ruhig gelegen, mit einem angenehmen Umfeld. Einkaufsmöglichkeiten, soziale Einrichtungen und der öffentliche Nahverkehr sind bequem und ortsüblich erreichbar.
Passt nicht ganz zu euren Vorstellungen? Kein Problem! Erzählt mir einfach, wonach ihr sucht. Ich...
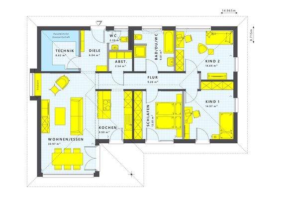
Das Haus
Kategorie
Bungalow
Baujahr
2025
Energie & Heizung
Warum sehe ich diese Anzeige? – Du siehst diese Anzeige basierend auf Ihrer Navigation auf unserer Website und den Suchkriterien, die du verwendet hast.
Energieausweistyp
Bedarfsausweis
Gebäudetyp
Wohngebäude
Wesentliche Energieträger
Strom
Endenergiebedarf
18,00 kWh/(m²·a)
Weitere Energiedaten
Haustyp
KfW 40
Heizungsart
Fußbodenheizung, Luft-/Wasser-Wärmepumpe
Details
Objektbeschreibung
Wir haben ZUHAUSE verstanden.
Um ZUHAUSE zu verstehen, muss man die Menschen verstehen - also dich. Deshalb beschäftigen wir uns intensiv mit denen, die bauen möchten oder schon gebaut haben. Wir hören zu, lernen und sind im Dialog mit euch. Denn eines ist klar: ZUHAUSE ist in erster Linie ein Gefühl - und erst danach ein...
Ausstattung
Living Haus, da ist alles mit drin.
- Grundstücks-Service
- Finanzierungs-Service
- Hausbau-Förderung
- alle notwenigen Bauherren-Versicherungen
- DGNB-Zertifizierung in Gold
- der Architekt für die Baugenehmigungsplanung
Das alles brauchst du sowieso - deshalb bekommst du das bei Living Haus gleich mit...
Weitere Informationen
Sonstiges
Das hier angebotene Grundstück ist bereits im oben genannten Preis enthalten. Für Living Haus-Bauherren wird es ohne zusätzliche Provision bereitgestellt - ein klarer Vorteil für euch!
Zusätzliche Baunebenkosten kommen noch hinzu, aber keine Sorge: Wir beraten euch ausführlich, damit ihr alle Kosten...
Anbieter der Immobilie
Living Fertighaus GmbH - Denny Wedell
Goerzallee 189-223, 14167 Steglitz-Zehlendorf
Online-ID: 2muka5v
Referenznummer: 30678-8492
Finde Angebote wie dieses
Hier geht es zu unserem Impressum, den Allgemeinen Geschäftsbedingungen, den Hinweisen zum Datenschutz und nutzungsbasierter Online-Werbung.