

Classic Immobilien
Herr Tom-Piet Michahelles
004 ···
Nr. anzeigenPreise & Kosten
Provision für Käufer
3,57% auf den Kaufpreis inkl. MwSt.
Lage
Die Immobilie befindet sich in zentrumsnaher Lage von Schenefeld, in einer Wohnstraße mit überwiegend Einfamilien- und Doppelhaushausbebauung. Bushaltestellen liegen in fußläufiger Entfernung, die BAB / Halstenbek (A23) ist in ca. 5 Minuten zu erreichen.
Durch das nahegelegene Stadtzentrum Schenefeld und mehrere Geschäfte...
Das Haus
Kategorie
Einfamilienhaus
Baujahr
1972
Bezug
frei lieferbar
Energie & Heizung
Warum sehe ich diese Anzeige? – Du siehst diese Anzeige basierend auf Ihrer Navigation auf unserer Website und den Suchkriterien, die du verwendet hast.
Energieausweistyp
Bedarfsausweis
Gebäudetyp
Wohngebäude
Baujahr laut Energieausweis
1984
Wesentliche Energieträger
OEL
Gültigkeit
bis 18.12.2035
Effizienzklasse
G
Endenergiebedarf
224,80 kWh/(m²·a)
Weitere Energiedaten
Energieträger
Öl
Heizungsart
Zentralheizung
Details
Objektbeschreibung
Die fortlaufend instandgehaltene Immobilie wurde 1972 in konventioneller Bauweise mit Vollkeller und Ringdrainage erstellt und präsentiert sich großzügig und ansprechend. 2025 erfolgte eine weitestgehende Modernisierung der kompletten Innenausstattung sowie der Austausch einiger Fenster. Beheizt wird das Haus durch eine...
Ausstattung
Folgende Einzelheiten dieser Immobilie möchten wir besonders hervorheben:
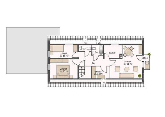
.Jeweils ein Bad sowie ein Gäste-WC im Erd- und Dachgeschoss
.Erdgeschoss mit ca. 15m² großer Süd-Westterrasse, Balkon im Dachgeschoss
.Stäbchenparkett und Kunststoff-Designbelag
.Küchenanschlüsse vorhanden, ohne...
Preisinformation
2 Garagenstellplätze
Weitere Informationen
Sonstiges
Das 663 m² große, nach Süden ausgerichtete Grundstück verfügt über eine um das Haus verlaufende, ganztägig sonnige Rasenfläche. Die Einfriedung besteht aus Hecken und Zäunen.
Stichworte
Nutzfläche: 150,00 m², Anzahl der Schlafzimmer: 5,5, Anzahl der Badezimmer: 2, Anzahl der separaten WCs: 2, Anzahl...
Anbieter der Immobilie

Online-ID: 2mukd5x
Referenznummer: 1039
Finde Angebote wie dieses
Hier geht es zu unserem Impressum, den Allgemeinen Geschäftsbedingungen, den Hinweisen zum Datenschutz und nutzungsbasierter Online-Werbung.