

Kraft Immobilien
Herrn Korbinian Kraft
085 ···
Nr. anzeigenPreise & Kosten
Kaution
1.770 €
Warum sehe ich diese Anzeige? – Du siehst diese Anzeige basierend auf Ihrer Navigation auf unserer Website und den Suchkriterien, die du verwendet hast.
Lage
Die attraktive Mietwohnung befindet sich in der Vornholzstraße in Passau und liegt im 8. Stock eines gepflegten Mehrfamilienhauses. Eine Aufzugsanlage ermöglicht einen bequemen Zugang zur Wohnung.
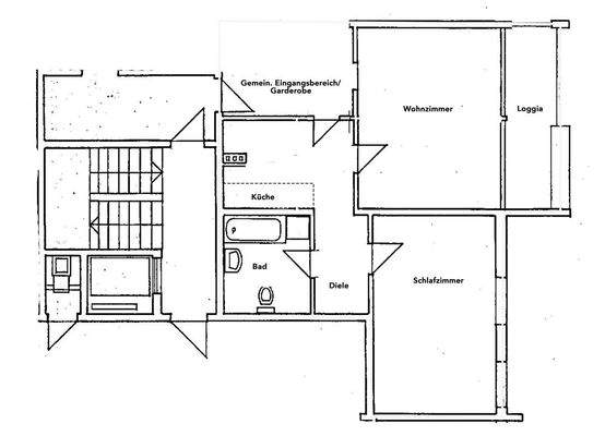
Die Wohnung
Wohnungslage
8. Geschoss
Bezug
01.03.2026
Wohnanlage
Energie & Heizung
Warum sehe ich diese Anzeige? – Du siehst diese Anzeige basierend auf Ihrer Navigation auf unserer Website und den Suchkriterien, die du verwendet hast.
Energieausweistyp
Verbrauchsausweis
Gebäudetyp
Wohngebäude
Wesentliche Energieträger
Gas
Gültigkeit
31.08.2018 bis 30.08.2028
Effizienzklasse
C
Endenergieverbrauch
76,00 kWh/(m²·a) - Warmwasser enthalten
Weitere Energiedaten
Energieträger
Gas
Heizungsart
Zentralheizung
Details
Objektbeschreibung
Die Wohnung verfügt über ein gemütliches und helles Schlafzimmer. Das großzügige Wohnzimmer bietet nicht nur ausreichend Platz für Ihre Wohnideen, sondern ermöglicht auch den Zugang zur Loggia. Von dort aus genießen Sie einen beeindruckenden Weitblick über die malerische Stadt Passau. Das Badezimmer der Wohnung ist mit einem...
Ausstattung
- zwei Lichtkuppeln für Tageslicht im Badezimmer und Küche
- herrlicher Blick auf Passau
- eigene abschließbare Garage
- Einbauküche vorhanden und im Mietpreis inklusive
- eigenes Kellerabteil
- Badewanne mit Duschabtrennung
- Waschmaschinenanschluss im Badezimmer
- versierter Hausmeister im Gebäude
-...
Preisinformation
1 Garagenstellplatz, Miete: 50,00 EUR
Weitere Informationen
Sonstiges
Haben wir Ihr Interesse geweckt? Dann nutzen Sie bitte das Kontaktformular in der Anzeige und schreiben uns darüber eine E-Mail. Ein ausführliches Exposé senden wir Ihnen gerne nach vollständiger Kontaktanfrage.
Alle Angaben in diesem Exposé wurden sorgfältig und so vollständig wie möglich erstellt. Die...
Anbieter der Immobilie
Kraft Immobilien
Dr.-Geiger-Weg 4, 94032 Passau

Online-ID: 2muls5h
Referenznummer: 25-WM-86
Finde Angebote wie dieses
Hier geht es zu unserem Impressum, den Allgemeinen Geschäftsbedingungen, den Hinweisen zum Datenschutz und nutzungsbasierter Online-Werbung.