
von Quast Immobilien
Herr Christoph von Quast
004 ···
Nr. anzeigenPreise & Kosten
Provision für Käufer
3,57 % inkl. Mehrwertsteuer
Lage
Idyllische Lage in Hagenheim - Naturnah und gut angebunden
Dieses charmante Objekt befindet sich im malerischen Ortsteil Hagenheim, einem Teil der Gemeinde Hofstetten. Am ruhigen Ortsrand gelegen, genießen Sie hier die perfekte Kombination aus naturnahem Wohnen und guter Erreichbarkeit der umliegenden Städte und...
Das Haus
Kategorie
Doppelhaushälfte
Baujahr
1999
Bezug
nach Absprache
Energie & Heizung
Warum sehe ich diese Anzeige? – Du siehst diese Anzeige basierend auf Ihrer Navigation auf unserer Website und den Suchkriterien, die du verwendet hast.
Energieausweistyp
Verbrauchsausweis
Gebäudetyp
Wohngebäude
Baujahr laut Energieausweis
1999
Wesentliche Energieträger
OEL
Gültigkeit
bis 13.02.2035
Effizienzklasse
B
Endenergieverbrauch
58,10 kWh/(m²·a)
Weitere Energiedaten
Energieträger
Öl
Heizungsart
offener Kamin, Zentralheizung
Details
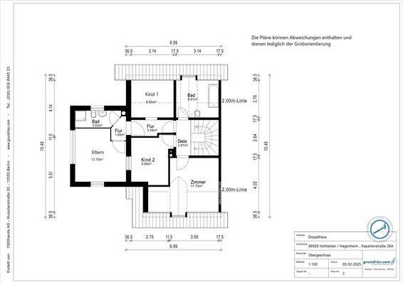
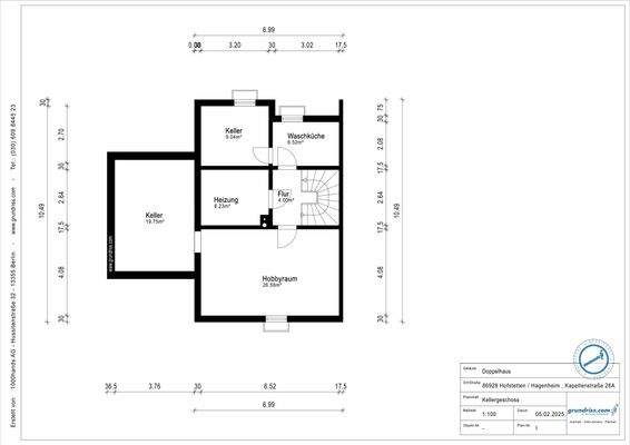
Objektbeschreibung
Die 1999 erbaute, naturnahe Doppelhaushälfte ist deshalb besonders, weil im Jahre 2007 noch ein großer Anbau vom Keller bis zum DG hinzugebaut wurde und dadurch das Haus sehr geräumig ist. Zudem verfügt das Anwesen über eine weitere Besonderheit: mit 485 m² ist das Grundstück vergleichsweise groß und wegen eines...
Ausstattung
- durch einen Pachtvertrag mit sehr geringer Jahrespacht hat man noch deutlich mehr Garten zur eigenen Verfügung (insgesamt ca. 800 m², aber kein Bestandteil des Verkaufsangebotes)
- Fotovoltaikanlage
- Gartenhaus
- 1 Garage + 1 Stellplatz
- großer überdachter Eingangsbereich
- Wintergarten
- 2 Bäder
- u...
Preisinformation
1 Stellplatz
1 Garagenstellplatz
Weitere Informationen
Sonstiges
- Als Makler sind wir gemäß Gesetz über die Verteilung der Maklerkosten § 656 BGB für Verkäufer und Käufer in gleicher Höhe provisionspflichtig tätig.
- Alle Angaben, auch die Pläne beruhen auf den Angaben des Eigentümers und wurden von uns nicht nachgeprüft. Für Abweichungen jeglicher Art wird deshalb keine...
Anbieter der Immobilie
von Quast Immobilien
Von-Pfetten-Str. 13, 86932 Pürgen
Online-ID: 2muq658
Referenznummer: 2025-00109
Finde Angebote wie dieses
Hier geht es zu unserem Impressum, den Allgemeinen Geschäftsbedingungen, den Hinweisen zum Datenschutz und nutzungsbasierter Online-Werbung.