
Licus AG
Kontaktiere den Anbieter schriftlich, es ist keine Telefonnummer hinterlegt.
Preise & Kosten
Provision für Käufer
provisionsfrei
Lage
Entdecken Sie dieses charmante Anwesen in einer der begehrtesten Wohnlagen der Stadt. Die Immobilie befindet sich in einer ruhigen und dennoch zentralen Gegend, die sowohl die Ruhe des Vorstadtlebens als auch die Annehmlichkeiten des Stadtzentrums bietet.
Nur wenige Gehminuten entfernt finden Sie eine Vielzahl von...
Das Haus
Kategorie
Doppelhaushälfte
Bezug
31.11.2026
Energie & Heizung
Warum sehe ich diese Anzeige? – Du siehst diese Anzeige basierend auf Ihrer Navigation auf unserer Website und den Suchkriterien, die du verwendet hast.
Energieausweis: für diesen Gebäudetyp nicht notwendig
Details
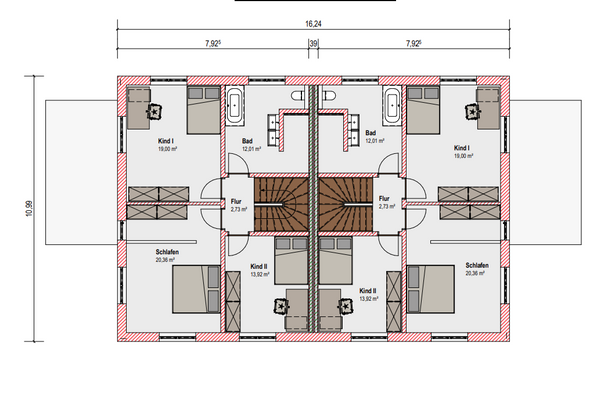
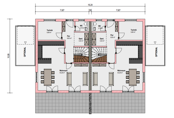
Objektbeschreibung
Die Projektplanung sieht vor das dieses Objekt über die Domus Regiobau GmbH gebaut wird, diese ist schon seid Jahren ein zuverlässiger und effektiver Partner wenn es um den Bau von Häusern rund um die Region Schwabmünchen geht. Bei dem Objekt ist es aktuell noch möglich auf jegliche Wünsche im Rahmen des gezeigten Bauplans...
Weitere Informationen
Stichworte
Anzahl der Schlafzimmer: 3, Anzahl der Badezimmer: 1, Bundesland: Bayern
Anbieter der Immobilie
Licus AG
Fuggerstraße 8, 86830 Schwabmünchen
Kontaktiere den Anbieter schriftlich, es ist keine Telefonnummer hinterlegt.
Online-ID: 2muqq5l
Referenznummer: 4672340
Finde Angebote wie dieses
Hier geht es zu unserem Impressum, den Allgemeinen Geschäftsbedingungen, den Hinweisen zum Datenschutz und nutzungsbasierter Online-Werbung.