
Grundstücksgesellschaft Manke GmbH & Co. KG
Team Manke Verkauf
+49 ···
Nr. anzeigenDieses Angebot ist Teil des Neubauprojekts
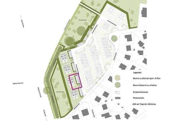
An den Obstwiesen - Quartier 96.4 in Henstedt-Ulzburg
Preise & Kosten
Provision für Käufer
provisionsfrei
Lage
Es ist ein ganz besonderer Ort, an dem Sie in Zukunft mit Ihren Liebsten glücklich leben können. Zwischen 103 m² und 130 m² Wohnglück im Grünen, lebens- und liebenswert zugleich. Mit einem unverbaubaren Blick in die Natur. Einzigartig.
• Ulzburg Süd gehört zur Gemeinde von Henstedt-Ulzburg, die der Metropolregion...
Das Haus
Kategorie
Doppelhaushälfte
Bezug
2026
Derzeitige Nutzung
frei
Das Neubauprojekt
Energie & Heizung
Warum sehe ich diese Anzeige? – Du siehst diese Anzeige basierend auf Ihrer Navigation auf unserer Website und den Suchkriterien, die du verwendet hast.
Energieausweistyp
Bedarfsausweis
Gebäudetyp
Wohngebäude
Wesentliche Energieträger
Luft-Wasser-Wärmepumpee/Strom
Effizienzklasse
A+
Endenergiebedarf
26,50 kWh/(m²·a)
Weitere Energiedaten
Haustyp
Massivhaus
Heizungsart
Fußbodenheizung, Luft-/Wasser-Wärmepumpe
Details
Objektbeschreibung
Einfach unverbaubar - Ihr neues Eigenheim!
Möglichst im Grünen und bei guter Infrastruktur, so wollen wir wohnen. Im finalen Bauabschnitt entstehen 8 Doppelhaushälften auf höchstem technischen Niveau und in optimaler Lage: Et voilà!
• gebaut nach GEG 2024
• Verblendsteinmauerwerk
• Satteldach in...
Weitere Informationen
Besichtigungen
Jetzt Rohbau besichtigen!
Öffnungszeiten Montag - Sonntag mit Termin, nach vorheriger Vereinbarung.
Sie finden uns in in unserer Info-Box An den Obstwiesen in 24558 Henstedt-Ulzburg.
Gern stimmen wir individuelle Besichtigungstermine mit Ihnen ab. Bitte kontaktieren Sie hierfür unser...
Anbieter der Immobilie
Online-ID: 2muth5m
Referenznummer: 216-003 D2
Finde Angebote wie dieses
Hier geht es zu unserem Impressum, den Allgemeinen Geschäftsbedingungen, den Hinweisen zum Datenschutz und nutzungsbasierter Online-Werbung.