
Junker Immobilien GmbH & Co. KG
061 ···
Nr. anzeigenPreise & Kosten
Provision für Käufer
Käuferprovision 3,57 % inkl. MwSt. vom Kaufpreis.
Lage
Das Objekt liegt in begehrter, ruhiger Wohnlage von Rodgau-Dudenhofen, in einer verkehrsberuhigten Spielstraße innerhalb eines familienfreundlichen Wohngebiets. Hier können Ihre Kinder noch ungestört vor dem Haus spielen und in einem sicheren Umfeld unbeschwert aufwachsen.
Die Stadt Rodgau gehört insbesondere wegen der...
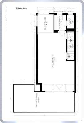
Das Haus
Kategorie
Doppelhaushälfte
Baujahr
2012
Energie & Heizung
Warum sehe ich diese Anzeige? – Du siehst diese Anzeige basierend auf Ihrer Navigation auf unserer Website und den Suchkriterien, die du verwendet hast.
Energieausweistyp
Bedarfsausweis
Gebäudetyp
Wohngebäude
Baujahr laut Energieausweis
2012
Gültigkeit
bis 27.07.2035
Effizienzklasse
C
Endenergiebedarf
83,70 kWh/(m²·a)
Weitere Energiedaten
Energieträger
Fernwärme
Details
Objektbeschreibung
Sie sind auf der Suche nach einem Domizil in bevorzugter Lage, das nicht nur großzügigen Wohnraum für die ganze Familie, sondern auch Raum für individuelles Leben, produktives Arbeiten und persönliche Entfaltung bereithält? Sie legen dabei Wert auf hohe Lebensqualität, ein durchdachtes Wohnkonzept und eine erstklassige...
Ausstattung
Die Immobilie überzeugt mit einer durchgehend hochwertigen Ausstattung und befindet sich in einem erstklassigen Zustand. Hier gilt "Einziehen und Wohlfühlen"!
Nachfolgend einige Merkmale im Überblick die Ihnen die Vorzüge dieses attraktiven Angebots schnell näherbringen werden:
. Bodenbeläge - Echtholzparkett in...
Weitere Informationen
Sonstiges
Auch für Ihre Fahrzeuge ist mit einer großzügigen Garage mit zusätzlichem Stauraum und einem weiteren Außenstellplatz direkt am Haus bestens gesorgt. Mit der Immobilie erwerben Sie einen Anteil an der Privatstraße und werden Eigentümer einer Bruchteilsgemeinschaft.
Des Weiteren kann auf Wunsch ein...
Anbieter der Immobilie
Online-ID: 2muu75p
Referenznummer: 3072
Finde Angebote wie dieses
Hier geht es zu unserem Impressum, den Allgemeinen Geschäftsbedingungen, den Hinweisen zum Datenschutz und nutzungsbasierter Online-Werbung.