

Wohnung zum Kauf130000 €4.815 €/m²1 Zimmer • 27 m² • 2. Geschoss
130000 €
4.815 €/m²
1 Zimmer • 27 m² • 2. Geschoss
Kein Stress mit Mietersuche: Zentrumnahes Pflegeappartement zur Kapitalanlage mit Erbpacht**
Merkmale
- vermietet
- 2. Geschoss
- Personenaufzug
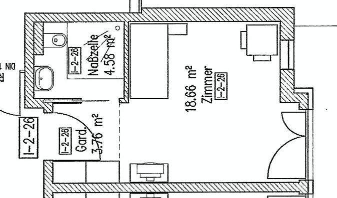
Grundrisse
Grundrisse
1 / 2
Realisiere Dein Projekt
Bausubstanz und Energie
Energieausweis
D
- Baujahr2000
- Zustand der ImmobilieGepflegt
- HeizungsartZentralheizung
- EnergieträgerGas
Preisdetails
Kaufpreis
130000 €
4.814,81 €/m²
Hausgeld
187.85 €
Provision für Käufer
3,57 % der Kaufpreissumme incl. 19 % MwST
Weitere Preisinformationen
Ist-Mieteinnahmen pro Jahr: 7.875,72 EUR
Geschätzte Gesamtkosten
141.791 €1
Kaufpreis
130.000 €
Kaufnebenkosten
11.791 €
2Notarkosten (1,5%)
1.950 €
Grunderwerbsteuer (3,5%)
4.550 €
Provision für Käufer (3,57%)
4.641 €
Grundbucheintrag (0,5%)
650 €
1Der angezeigte Wert ist eine automatisch berechnete Schätzung von immowelt.
2Bei den Angaben handelt es sich um ortsübliche Werte. Individuelle Kosten können abweichen.
Lage

West, Landshut (84034)
Der Anbieter hat die genaue Adresse nicht freigegeben
Weitere Informationen
Weitere Services
Lust auf eine Besichtigung?
Eine Frage zur Immobilie?
Ăśber den Anbieter
Liane Paukner ImmobilienMaklerbĂĽro
Innere Regensburger Str. 4, 84034 Landshut
Partnerschaft

Frau Liane PauknerDein Kontakt
Online-ID: 2muun59
Referenznummer: LP718


Liane Paukner Immobilien
Bewertung: 5 von 5 Sternen
Wie zufrieden bist du mit dieser Seite (nicht mit der Immobilie selbst)?

