
ohne-makler.net - Immobilien selbst vermarkten
Privat vom Eigentümer
Kontaktiere den Anbieter schriftlich, es ist keine Telefonnummer hinterlegt.
Preise & Kosten
Provision für Käufer
provisionsfrei
Lage
Lagebeschreibung
Wer sich nach einem Alltag sehnt, der gleichzeitig ruhig und praktisch ist, wird diese Lage lieben: Im alten Ortskern von Wössingen (Gemeinde Walzbachtal) wohnt man eingebettet in ein familienfreundliches Umfeld - und hat trotzdem kurze Wege zu allem, was das Leben angenehm macht. Und als Besonderheit...
Das Haus
Kategorie
Einfamilienhaus
Baujahr
1800
Bezug
nach Absprache
Energie & Heizung
Warum sehe ich diese Anzeige? – Du siehst diese Anzeige basierend auf Ihrer Navigation auf unserer Website und den Suchkriterien, die du verwendet hast.
Energieausweistyp
Bedarfsausweis
Gebäudetyp
Wohngebäude
Effizienzklasse
G
Endenergiebedarf
224,00 kWh/(m²·a)
Weitere Energiedaten
Energieträger
Öl
Heizungsart
offener Kamin, Zentralheizung
Details
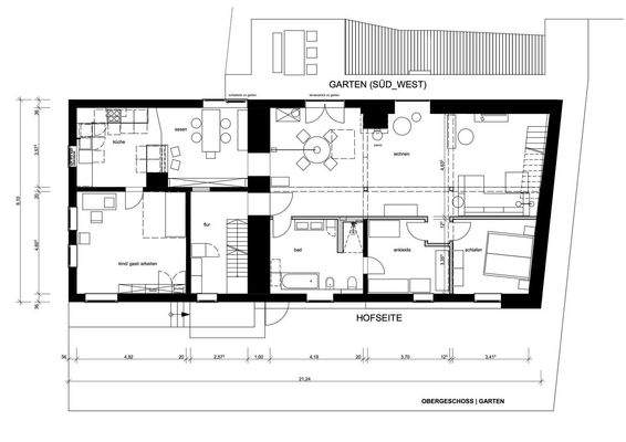
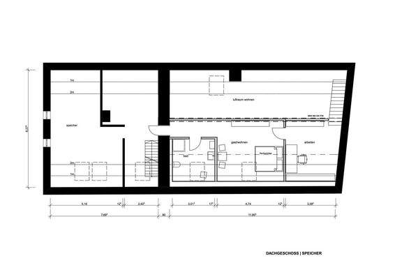
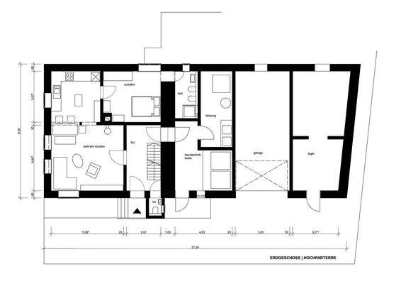
Objektbeschreibung
Objektbeschreibung
Stell dir vor, du kommst nach Hause - und hinter der Straße öffnet sich plötzlich eine kleine, geschützte Welt aus Naturstein, Holz und Grün: ein Haus mit Geschichte, Weite und diesem seltenen Gefühl von "angekommen". Genau das bietet dieses sanierte, freistehende Wohnhaus (Baujahr ca. 1800) - privat...
Ausstattung
Terrasse, Garten, Einbauküche, Gäste-WC, Kamin, Parkett, Fliesen
Bemerkungen:
Bemerkungen zur Ausstattung
Dieses Haus erzählt Geschichte - aber es lebt im Heute: Natursteinmauerwerk, sichtbares Gebälk und zugleich eine Ausstattung, die Alltag komfortabel macht. Besonders eindrucksvoll ist das große...
Preisinformation
2 Stellplätze
1 Garagenstellplatz
Weitere Informationen
Sonstiges
Heizungsart: Zentralheizung
Energieträger: Öl
Rechtlicher Hinweis
Privatverkauf ohne Maklerprovision. Alle Angaben in dieser Anzeige beruhen auf Angaben/Unterlagen der Eigentümer und erfolgen ohne Gewähr. Irrtum und Zwischenverkauf vorbehalten. Energieausweis liegt zur Besichtigung...
Anbieter der Immobilie
ohne-makler.net - Immobilien selbst vermarkten
Humboldtstr. 25 A, 21509 Glinde
Privat vom Eigentümer
Dein Ansprechpartner
Kontaktiere den Anbieter schriftlich, es ist keine Telefonnummer hinterlegt.
Online-ID: 2muvs5u
Referenznummer: 411548
Finde Angebote wie dieses
Hier geht es zu unserem Impressum, den Allgemeinen Geschäftsbedingungen, den Hinweisen zum Datenschutz und nutzungsbasierter Online-Werbung.