
BRÜCKE-Immobilien e.K.
Herr/Frau Team BRÜCKE- Immobilien
035 ···
Nr. anzeigenPreise & Kosten
Provision für Käufer
provisionsfrei
Abschreibung/Anlage
Denkmalschutz-Afa
Lage
Das angebotene Wohn- und Geschäftshaus befindet sich in der Teichstraße 19/20 sowie Demianiplatz 43, in der malerischen Stadt Görlitz der östlichsten Stadt Deutschlands. Görlitz, bekannt für seine reichhaltige Geschichte und beeindruckende Architektur, bietet eine einzigartige Mischung aus kulturelle Erlebnisse und moderne...
Das Haus
Kategorie
Mehrfamilienhaus
Derzeitige Nutzung
vermietet
Energie & Heizung
Warum sehe ich diese Anzeige? – Du siehst diese Anzeige basierend auf Ihrer Navigation auf unserer Website und den Suchkriterien, die du verwendet hast.
Energieausweis: für diesen Gebäudetyp nicht notwendig
Weitere Energiedaten
Energieträger
Gas
Heizungsart
offener Kamin, Zentralheizung
Details
Objektbeschreibung
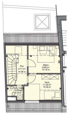
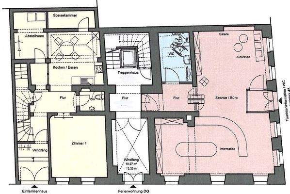
Wohnhaus Teichstraße 19:
Das Wohnhaus auf der Teichstraße 19 erstreckt sich über 3 Etagen. Das Erdgeschoss ist aufgeteilt in einen ca. 15 m² Eingangsbereich und Abstellraum. Im selbigen Objekt befindet sich z.Z. eine ca. 37m² große vermietete Gewerbeeinheit, diese besitzt einen separaten Eingang von der Straße aus.
Das...
Ausstattung
? Fliesen
? Bad mit Wanne
? Tageslichtbad
? Laminat
? Kamin
? Gäste WC
? Balkon/ Terrasse
? Bezahlautomat
? Doppelverglasung
? Holzbalkendecke
? Gewölbekeller
? Abstellraum
Weitere Informationen
Sonstiges
Das angebotene Wohn- und Geschäftshaus wurde in den Jahren 2011/2012 kernsaniert.
Ein Teil der Gewerbeflächen sind bis dato vermietet. Auskunft über die monatlich erzielte Miete geben wir Ihnen auf Anfrage gern.
Stichworte
Nutzfläche: 435,00 m², Anzahl Terrassen: 1, 3 Etagen, modernisiert, Distanz...
Anbieter der Immobilie
Online-ID: 2muws5c
Referenznummer: Teichstr/Demi
Finde Angebote wie dieses
Hier geht es zu unserem Impressum, den Allgemeinen Geschäftsbedingungen, den Hinweisen zum Datenschutz und nutzungsbasierter Online-Werbung.