

BoHolz Haus
Herr Wolfram Gebhardt
017 ···
Nr. anzeigenPreise & Kosten
Provision für Käufer
provisionsfrei
Lage
Leben, wo andere Urlaub machen – Sinsheim-Waldangelloch
Waldangelloch, ein malerischer Stadtteil von Sinsheim, liegt eingebettet in die sanften Hügel des Kraichgaus und bietet naturnahes Wohnen mit hervorragender Lebensqualität. Der Ort überzeugt durch seine ruhige, familienfreundliche Lage, ein intaktes Dorfleben und...
Das Haus
Kategorie
Einfamilienhaus
Baujahr
2026
Energie & Heizung
Warum sehe ich diese Anzeige? – Du siehst diese Anzeige basierend auf Ihrer Navigation auf unserer Website und den Suchkriterien, die du verwendet hast.
Weitere Energiedaten
Haustyp
KfW 55
Heizungsart
Fußbodenheizung, Luft-/Wasser-Wärmepumpe
Details
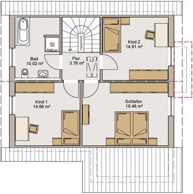
Objektbeschreibung
Modernes Einfamilienhaus – offen, großzügig und lichtdurchflutet
Dieses Haus überzeugt durch eine moderne, offene Architektur mit klaren Linien und großzügigen Glasflächen, die für viel Tageslicht und ein angenehmes Wohngefühl sorgen.
Der weitläufige Wohn-, Ess- und Kochbereich mit über 40 m² ist das Herzstück...
Ausstattung
Mit unschlagbaren VORTEILEN
* Nachhaltige diffusionsoffene Außenwände mit Holzfaserdämmplatte für sommerlichen Hitzeschutz
* Sicherheitsgeprüfte Haustüre (RC2N Verriegelung) - Schwellenabdichtung mit Folienverbundblech – dies ermöglicht einen schwellenfreien Zugang
* Dachkonstruktion mit einer Schneelast von...
Weitere Informationen
Sonstiges
* Individuell
* Familiär
* Nachhaltig
* Traditionell
* Partnerschaftlich mit voller Kompetenz!
Finanzierungs- und GrundstückSERVICE
Im Preis ist das GRUNDSTÜCK (Erbpacht) und die BODENPLATTE enthalten
GERNE BAUEN WIR DAS HAUS AUCH AUF IHREM EIGENEN GRUNDSTÜCK
Das Angebot versteht sich...
Dokumente
Anbieter der Immobilie
BoHolz Haus
Kantstraße 8, 64668 Rimbach

Online-ID: 2muwt5s
Referenznummer: GE-24-12.25-74252
Finde Angebote wie dieses
Hier geht es zu unserem Impressum, den Allgemeinen Geschäftsbedingungen, den Hinweisen zum Datenschutz und nutzungsbasierter Online-Werbung.