
DER IMMO TIP Vermittlung von Immobilien GmbH
Herr Patrick Pflügner
004 ···
Nr. anzeigenPreise & Kosten
Provision für Mieter
Bitte beachte, das Angebot kann bei Vertragsabschluss die Zahlung einer Provision beinhalten. Weitere Informationen erhältst Du vom Anbieter.
Abschreibung/Anlage
Denkmalschutz-Afa
Warum sehe ich diese Anzeige? – Du siehst diese Anzeige basierend auf Ihrer Navigation auf unserer Website und den Suchkriterien, die du verwendet hast.
Lage
Die Immobilie befindet sich im Stadtteil Wilsdruffer Vorstadt, nur wenige Autominuten von der Dresdner Innenstadt entfernt. Die Wilsdruffer Vorstadt ist Teil des statistischen Stadtteils Wilsdruffer Vorstadt/Seevorstadt-West im Stadtbezirk Altstadt. Sie schließt sich westlich an die Innere Altstadt an und erstreckt sich in...
Büro-/Praxisfläche
Kategorie
Bürofläche
Bezug
ab 1.1.2026
Geschoss
2. Geschoss
Energie & Heizung
Warum sehe ich diese Anzeige? – Du siehst diese Anzeige basierend auf Ihrer Navigation auf unserer Website und den Suchkriterien, die du verwendet hast.
Energieausweis: für diesen Gebäudetyp nicht notwendig
Details
Objektbeschreibung
Kurzbeschreibung
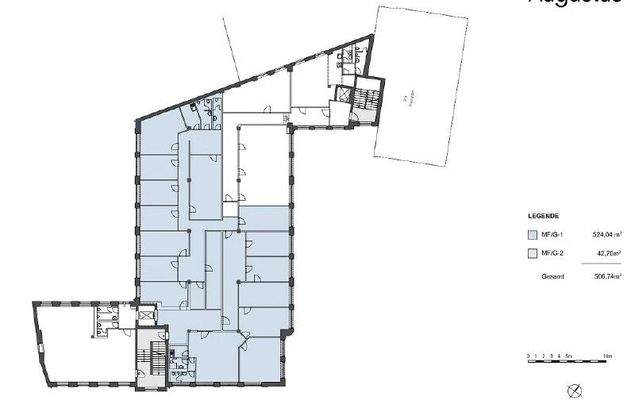
TOP Bürostandort | ca. 570 m² Bürofläche nahe Innenstadt | mit TG Stellplätzen
Objekt
Zur Vermietung steht eine ca. 570 m² große Bürofläche im 2. Obergeschoss einer vielseitig genutzten Gewerbeimmobilie. Der Gebäudekomplex bietet im Erdgeschoss einen Lebensmittelmarkt. In den darüberliegenden...
Ausstattung
* helles Raumklima
* getrennter Sanitärbereich
* individuelle Raumgestaltung
* Aufzug bis zu Einheit
* 2 Teeküchen
* Besprechungsraum
* bis zu 3 TG Stellplätze zusätzlich anmietbar
Weitere Informationen
Sonstiges
Hinweis: Fehlende Angaben zum Energieausweis gemäß Energiesparverordnung 2014 ( EnEV ) begründen sich durch Nichtangabepflicht bei Denkmalschutzobjekten, Grundstücken, nichtbeheizbaren Immobilien oder wurden bisher trotz Aufforderung gegenüber dem Auftraggeber nicht zur Verfügung...
Anbieter der Immobilie
DER IMMO TIP Vermittlung von Immobilien GmbH
Semperstr. 1, 01069 Dresden
Online-ID: 2muxt5r
Referenznummer: 100043
Finde Angebote wie dieses
Hier geht es zu unserem Impressum, den Allgemeinen Geschäftsbedingungen, den Hinweisen zum Datenschutz und nutzungsbasierter Online-Werbung.