
home4you Immobilien - eine Marke der more4you cologne GmbH
Herr Manuel Maschke
004 ···
Nr. anzeigenPreise & Kosten
Provision für Käufer
3,00 % des Kaufpreises zzgl. gesetzlicher MwSt., fällig mit Beurkundung des Kaufvertrags zzgl. MwSt. Weitere Informationen siehe Provisionshinweis.
Abschreibung/Anlage
Denkmalschutz-Afa
Lage
Die Lage dieser Immobilie überzeugt durch ihre zentrale und hervorragend angebundene Position in Leichlingen, direkt am Bahnhof. Die Stadt bietet eine perfekte Kombination aus urbaner Infrastruktur und naturnaher Umgebung.
Für Bewohner wie Kapitalanleger ist die Umgebung ideal:
Die hohe Besuchsfrequenz des Bahnhofs...
Das Haus
Baujahr
1880
Bezug
sofort
Derzeitige Nutzung
vermietet
Energie & Heizung
Warum sehe ich diese Anzeige? – Du siehst diese Anzeige basierend auf Ihrer Navigation auf unserer Website und den Suchkriterien, die du verwendet hast.
Energieausweis: für diesen Gebäudetyp nicht notwendig
Weitere Energiedaten
Energieträger
Gas
Details
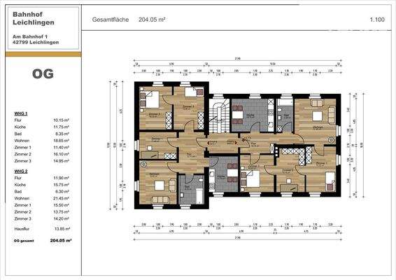
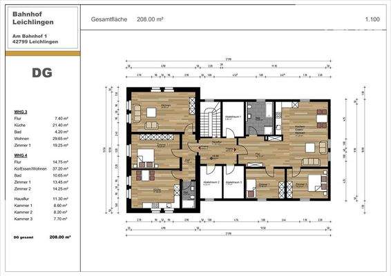
Objektbeschreibung
Einzigartige Kapitalanlage in Wohn-Geschäftsgebäude zum qm-Preis von 1.675 EUR.
Der imposante Bahnhof aus dem Jahr 1880 ist ganzjährig hoch frequentiert und zentraler Anlaufpunkt für Leichlingen und die gesamte Region. Er kombiniert historischen Charakter mit moderner Funktionalität und bietet vielfältige geschäftliche...
Ausstattung
Das denkmalgeschützte Gebäude bietet eine durchdachte und vielseitige Ausstattung, die sowohl für gewerbliche als auch für Wohnnutzung bestens geeignet ist. Im Erdgeschoss steht eine großzügige Gastronomiefläche von 235 m² zur Verfügung, ausgestattet mit einer professionellen Küche, einer zentralen Thekenanlage und ca. 150...
Weitere Informationen
Provisionshinweis
3,00 % des Kaufpreises zzgl. gesetzlicher MwSt., fällig mit Beurkundung des Kaufvertrags zzgl. MwSt.
Es besteht die gesetzliche Pflicht zur Provisionsteilung nach §656c BGB, Käufer und Verkäufer zahlen 3% zzgl. gesetzlicher MwSt von 19% vom notariell beurkundeten Kaufpreis.3,57% (inkl. 19% MwSt.) vom...
Anbieter der Immobilie
home4you Immobilien - eine Marke der more4you cologne GmbH
Cardinalstr. 5, 50670 Köln
Online-ID: 2muy95j
Referenznummer: 1990-25DE
Finde Angebote wie dieses
Hier geht es zu unserem Impressum, den Allgemeinen Geschäftsbedingungen, den Hinweisen zum Datenschutz und nutzungsbasierter Online-Werbung.