
McMakler GmbH
Ihr McMakler Team
080 ···
Nr. anzeigenPreise & Kosten
Provision für Käufer
Die Provision i.H.v. 3,57 % inkl. MwSt. ist mit Kaufvertragsbeurkundung fällig, sofern der Verkaufspreis über 83.000,00 € liegt.
Liegt der Verkaufspreis dagegen bei/unter 83. Weitere Informationen siehe Provisionshinweis.
Lage
Lage: Ruhige Ortsrandlage in Nagold-Emmingen - verspricht Ruhe und Erholung
Bildung und Betreuung: Bildung und Betreuung vor Ort: ein Kindergarten im Umkreis von max. 6 km
Nahversorgung: Verschiedene Anlaufstellen wie Supermarkt, Apotheke, Postfiliale und Bankfiliale in max. 6 km
Anbindung: Nächste Bushaltestelle...
Das Renditeobjekt
Baujahr
1982
Bezug
nach Absprache
Energie & Heizung
Warum sehe ich diese Anzeige? – Du siehst diese Anzeige basierend auf Ihrer Navigation auf unserer Website und den Suchkriterien, die du verwendet hast.
Energieausweistyp
Bedarfsausweis
Gebäudetyp
Wohngebäude
Baujahr laut Energieausweis
1982
Wesentliche Energieträger
Öl,Pelletheizung
Effizienzklasse
H
Endenergiebedarf
303,10 kWh/(m²·a)
Weitere Energiedaten
Energieträger
Öl, Pellets
Heizungsart
Zentralheizung
Details
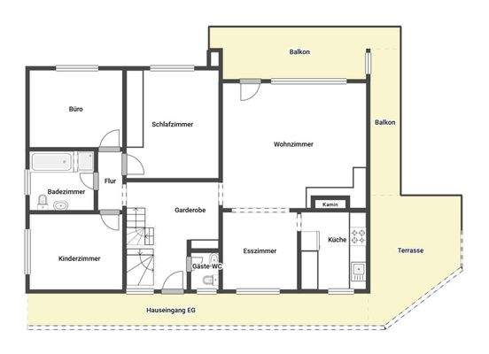
Objektbeschreibung
Objektnr: 1067724
+ In familienfreundlicher Umgebung in Ortsrandlage von Emmingen (Teilort von Nagold)
+ Der teils sichtgeschützte Garten auf ca. 540 m² Grund lädt zum Verweilen ein - eine Terrasse und ein Balkon bereichern das Erlebnis
+ Einliegerwohnung mit separatem Eingang
+ Vielseitige Ausstattung des...
Weitere Informationen
Provisionshinweis
Die Provision i.H.v. 3,57 % inkl. MwSt. ist mit Kaufvertragsbeurkundung fällig, sofern der Verkaufspreis über 83.000,00 € liegt.
Liegt der Verkaufspreis dagegen bei/unter 83.000,00 €, ist die fest vereinbarte Mindestprovision i.H.v. mind. 5.950,00 € inkl. MwSt. mit Kaufvertragsbeurkundung fällig...
Anbieter der Immobilie
McMakler GmbH
Am Postbahnhof 17, 10243 Berlin
Online-ID: 2muyv5u
Referenznummer: 5f9e68d2fa
Finde Angebote wie dieses
Hier geht es zu unserem Impressum, den Allgemeinen Geschäftsbedingungen, den Hinweisen zum Datenschutz und nutzungsbasierter Online-Werbung.