Terra Mission Real Estate Ges.m.b.H

Herr Friedrich Kutschi

Toskanavilla mit Seeblick in Reifnitz/Maria Wörth

€ 1.149.000
Kaufpreis
206 m²
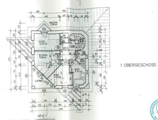
Wohnfläche ca.
k.A.
Zimmer
2 864 m²
Grundstücksfl. ca.
Finanzierung berechnen mit durchblicker

Der Anbieter dieses Objekts hat gegenüber der AVIV Germany GmbH als Betreiber dieses Online-Marktplatzes erklärt, nicht als Unternehmer im Sinne des § 1 KSchG zu handeln. Die im Verbraucherschutzrecht der Union verankerten Verbraucherrechte (insbesondere Informationspflichten und Rücktritts- bzw. Widerrufsrechte) finden auf den Vertrag zwischen dem Anbieter des Objekts und Ihnen (dem Interessenten) keine Anwendung.

Gewerblicher Anbieter

Der Anbieter dieses Objekts hat gegenüber der AVIV Germany GmbH als Betreiber dieses Online-Marktplatzes erklärt, als Unternehmer im Sinne des § 1 KSchG zu handeln.

AdresseStraße nicht freigegeben
9082 Maria Wörth 
Auf Karte ansehen

Preise & Kosten

Kaufpreis € 1.149.000 Betriebskosten € 150 Heizkosten € 200 Preis/m² € 5.776,70

Provision für Käufer

3% des Kaufpreises zzgl. 20% USt.

Lage

Das Haus

Kategorie

Einfamilienhaus

Geschosse

1 Geschoss

Baujahr

1988

Bezug

sofort

  • Zustand: gepflegt, Neubau
  • Terrasse, Garten, Balkon, Wintergarten
  • 6 Stellplätze: Garage, Außen-Stellplatz
  • Bad mit Fenster, Wanne und Dusche, Gäste-WC
  • offene Küche
  • Böden: Fliesenboden, Parkett
  • Anschlüsse: Kabelanschluss
  • Weitere Räume: Abstellraum
  • Ausstattung: teilweise möbliert

Energie & Heizung

Weitere Energiedaten

Haustyp

Massivhaus

Heizungsart

Luft-/Wasser-Wärmepumpe, Zentralheizung

Details

Objektbeschreibung

Traumhaus am Wörthersee - Exklusive Villa mit Seeblick in Reifnitz/Maria Wörth

Willkommen in Ihrem neuen Zuhause in einer der begehrtesten Lagen Kärntens!

Dieses traumhafte Anwesen in Reifnitz/Maria Wörth am Wörthersee vereint luxuriöses Wohnen mit atemberaubendem Seeblick, moderner Architektur und hochwertiger...

Mehr anzeigen

Preisinformation

6 Stellplätze
2 Garagenstellplätze

Weitere Informationen

Stichworte
Garage vorhanden, Fahrradraum, Rolladen, Anzahl der Badezimmer: 2, Anzahl der separaten WCs: 2, Anzahl Balkone: 2, Anzahl Terrassen: 3, Gartenfläche: 1.876,00 m², Kellerfläche: 100,00 m², Bundesland: Kärnten, 2 Etagen, modernisiert: 2023

Anbieter der Immobilie

Partner

Terra Mission Real Estate Ges.m.b.H

Tuchlauben 7A, 1010 WIEN

user

Herr Friedrich Kutschi

Dein Ansprechpartner

Anbieter-Website Anbieter-Profil Anbieter-Impressum

Online-ID: 2muz655

Referenznummer: OBGC2025100911532120927497f83f5

Finde Angebote wie dieses

imageimageimage

Günstige Immobilienfinanzierung einfach online berechnen

Persönliches Angebot berechnen

Hier geht es zu unserem Impressum, den Allgemeinen Geschäftsbedingungen, den Hinweisen zum Datenschutz und nutzungsbasierter Online-Werbung.