Schwabenhaus Bad Kreuznach - Anette Hartmann - Handelsvertretung für die Schwabenhaus GmbH

Anette Hartmann

Tiefenthal / individuell planbarer Neubau (mit FESTPREIS, u. verbindlicher Terminschiene) - FV*

€ 525.000
Kaufpreis
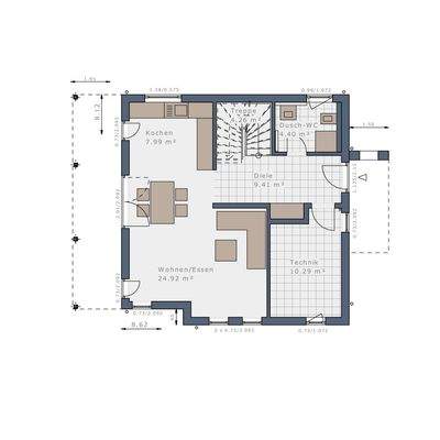
125 m²
Wohnfläche ca.
4
Zimmer
580 m²
Grundstücksfl. ca.

Der Anbieter dieses Objekts hat gegenüber der AVIV Germany GmbH als Betreiber dieses Online-Marktplatzes erklärt, nicht als Unternehmer im Sinne des § 1 KSchG zu handeln. Die im Verbraucherschutzrecht der Union verankerten Verbraucherrechte (insbesondere Informationspflichten und Rücktritts- bzw. Widerrufsrechte) finden auf den Vertrag zwischen dem Anbieter des Objekts und Ihnen (dem Interessenten) keine Anwendung.

Provisionsfrei
Gewerblicher Anbieter

Der Anbieter dieses Objekts hat gegenüber der AVIV Germany GmbH als Betreiber dieses Online-Marktplatzes erklärt, als Unternehmer im Sinne des § 1 KSchG zu handeln.

AdresseStraße nicht freigegeben
55546 Tiefenthal 
Auf Karte ansehen

Preise & Kosten

Kaufpreis € 525.000

Provision für Käufer

provisionsfrei

Lage

Gebaut wird auf einer großzügigen Baulücke, direkt am Ortsrand von Tiefenthal.

Kindergärten und eine Grundschule, so wie alles was Sie für den täglichen Bedarf benötigen, befinden sich in den benachbarten Ortschaften.

Die B 420 erreichen Sie in wenigen Autominuten, auch den Anschluss zur A61 erreichen Sie in...

Mehr anzeigen

Das Haus

Kategorie

Einfamilienhaus

  • Zustand: Neubau, projektiert
  • Gäste-WC

Energie & Heizung

Weitere Energiedaten

Heizungsart

Fußbodenheizung

Details

Objektbeschreibung

Hier können Sie als Bauherr die Hausbau-Firma SCHWABENHAUS mit der Errichtung eines energieeffizienten Hauses mit Festpreisgarantie und zeitnaher Fertigstellung beauftragen und Ihre Bauwünsche INDIVIDUELL auf einem wunderschönen Baugrundstück verwirklichen, welches Sie vorher direkt "von privat" erwerben würden. -- Die hier...

Mehr anzeigen

Ausstattung

Dieses SCHWABENHAUS wird in der Ausbaustufe FV = fast vollendet angeboten. In der Ausstattung fast vollendet xxl sind bei SCHWABENAUS bereits entscheidende Mehrleistungen schon im Standard der Bauleistungsbeschreibung (BLB) enthalten:

+ Rollläden in elektrischer Ausführung
+ Smart Home" Elektro-Installation für die...

Mehr anzeigen

Weitere Informationen

Sonstiges
Das angebotene Haus ist projektiert inkl. Grundstück. Das Grundstück wird in Kommission mit angeboten bzw. direkt von Dritten verkauft. Daher kann der o.g. Preis aufgrund aktueller Marktsituationen schwanken.

Änderungen und Irrtümer sind vorbehalten. Angebote sind freibleibend und unverbindlich. Weitere...

Mehr anzeigen

Anbieter der Immobilie

Partner
user

Anette Hartmann

Dein Ansprechpartner

Anbieter-Website Anbieter-Profil Anbieter-Impressum

Online-ID: 2muzk5v

Referenznummer: fw-ah-362719-Tiefenthal

Finde Angebote wie dieses

imageimageimage

Hier geht es zu unserem Impressum, den Allgemeinen Geschäftsbedingungen, den Hinweisen zum Datenschutz und nutzungsbasierter Online-Werbung.