

HKM Ausbau GmbH -Hausverwaltung-
Frau Sandra Bretzmann
034 ···
Nr. anzeigenPreise & Kosten
Kaution
750
Warum sehe ich diese Anzeige? – Du siehst diese Anzeige basierend auf Ihrer Navigation auf unserer Website und den Suchkriterien, die du verwendet hast.
Lage
Merseburg ist eine Dom- und Hochschulstadt an der Saale im südlichen Sachsen-Anhalt. Sie ist Verwaltungssitz des Landkreises Saalekreis. Merseburg ist über die Anschlussstelle Leipzig West / Merseburg an die A 9 (Berlin-München) und über 2 Abfahrten an die Südharzautobahn A 38 (Göttingen-Halle/Leipzig) angebunden. Innerhalb...
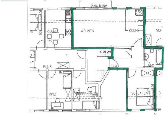
Die Wohnung
Wohnungslage
2. Geschoss
Bezug
01.04.2026
Wohnanlage
Energie & Heizung
Warum sehe ich diese Anzeige? – Du siehst diese Anzeige basierend auf Ihrer Navigation auf unserer Website und den Suchkriterien, die du verwendet hast.
Energieausweistyp
Verbrauchsausweis
Gebäudetyp
Wohngebäude
Baujahr laut Energieausweis
1998
Gültigkeit
bis 12.09.2027
Effizienzklasse
B
Endenergieverbrauch
110,20 kWh/(m²·a)
Weitere Energiedaten
Energieträger
Fernwärme
Details
Objektbeschreibung
Diese gepflegte 2-Raum-Wohnung mit ca. 48 m² Wohnfläche befindet sich im beliebten Fliegerstädtchen in Merseburg – einer ruhigen, grünen und sehr gefragten Wohnlage.
Die Wohnung überzeugt durch einen modernen, offenen Grundriss. Herzstück ist die offene Wohn-Essküche, die ein angenehmes Wohngefühl schafft und...
Weitere Informationen
Besichtigungstermine
nach Vereinbarung
0179/ 93 047 25
Stichworte
Zustand: renoviert, saniert, gepflegt
Serviceleistungen: Hausmeister
Sonstiges: frei werdend
Anbieter der Immobilie
HKM Ausbau GmbH -Hausverwaltung-
Schwarzer Weg 3, 06237 Leuna

Online-ID: 2muzx5q
Referenznummer: K20WE17
Finde Angebote wie dieses
Hier geht es zu unserem Impressum, den Allgemeinen Geschäftsbedingungen, den Hinweisen zum Datenschutz und nutzungsbasierter Online-Werbung.