
Maklerbüro Andreas Übler GmbH
Herr Niko Stark
004 ···
Nr. anzeigenPreise & Kosten
Provision für Käufer
3,00 % vom Kaufpreis inkl. ges. MwSt.
Provisionsfrei
Lage
LAGE:
31188 Holle
GRÖSSE:
ca. 106 m²
GRUNDSTÜCK:
845 m²
BEBAUBARKEIT:
Vorgesehen ist eine Bebauung mit Wohnhäusern
ERSCHLIESSUNGSGRAD:
voll erschlossen
NACHBARSCHAFT:
Wohnhäuser, Apotheken, Schule, Kindergarten, Supermarkt, Restaurant
BESCHAFFENHEIT:
eben
OPTIMAL:
- für einen...
Das Haus
Kategorie
Bungalow
Baujahr
2026
Energie & Heizung
Warum sehe ich diese Anzeige? – Du siehst diese Anzeige basierend auf Ihrer Navigation auf unserer Website und den Suchkriterien, die du verwendet hast.
Energieausweistyp
Bedarfsausweis
Gebäudetyp
Wohngebäude
Effizienzklasse
A
Weitere Energiedaten
Haustyp
Fertighaus
Heizungsart
Fußbodenheizung
Details
Objektbeschreibung
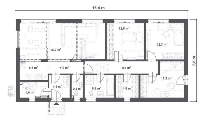
BUNGALOW 106
Der typische Holzbau Bungalow 106 ist ein ideales Zuhause für eine große Familie. Die größte Stärke dieses Bungalows ist die praktische Raumnutzung. Der Wohnbereich, bestehend aus Küche, Esszimmer und Wohnzimmer, ist außergewöhnlich hell und dank des offenen Dachbodens ungewöhnlich luftig.
Die...
Ausstattung
Das Haus kann auf Wunsch mit Keller gebaut werden. Ein zusätzliches Kellerangebot kann von uns eingeholt werden.
Hauspreis ab Oberkante, Keller, Bodenplatte.
HAUS BUNGALOW 106
inkl. Transportkosten
106 m²
4 Zimmer
Wohn-/ Esszimmer
Bauzeit ca. 18 Werktage
Einzugsfertig inklusive
Komplettservice...
Preisinformation
1 Stellplatz
Weitere Informationen
Sonstiges
Natürlich bauen mit Holz
Fertighäuser bestehen zu mehr als 60% aus diesem nachwachsenden Rohstoff. Ausgewählte Hölzer - fachmännisch verarbeitet garantieren eine lange Lebensdauer und eine gesunde und behagliche Wohnatmosphäre, das heißt gesundes Wohnen durch umweltbewusste Bauweise.
Kurze...
Anbieter der Immobilie
Online-ID: 2mv3s56
Referenznummer: BU106 31188
Finde Angebote wie dieses
Hier geht es zu unserem Impressum, den Allgemeinen Geschäftsbedingungen, den Hinweisen zum Datenschutz und nutzungsbasierter Online-Werbung.