
Römmler Immobilien GmbH
Frau Laura Vogt
017 ···
Nr. anzeigenPreise & Kosten
Provision für Käufer
provisionsfrei
Lage
Neuhausen im Erzgebirge besticht durch seine ruhige und naturnahe Lage im oberen Flöhatal, eingebettet in den Naturpark Erzgebirge/Vogtland. Diese Umgebung bietet eine angenehme Atmosphäre, die zur Konzentration und Erholung gleichermaßen einlädt - ideale Voraussetzungen für eine nachhaltige und produktive...
Das Renditeobjekt
Baujahr
1968
Energie & Heizung
Warum sehe ich diese Anzeige? – Du siehst diese Anzeige basierend auf Ihrer Navigation auf unserer Website und den Suchkriterien, die du verwendet hast.
Wärme
Energieausweistyp
Bedarfsausweis
Gebäudetyp
Nicht-Wohngebäude
Wesentliche Energieträger
Öl
Endenergiebedarf (Wärme)
255,56 kWh/(m²·a)
Weitere Energiedaten
Energieträger
Öl
Heizungsart
Zentralheizung
Details
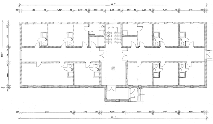
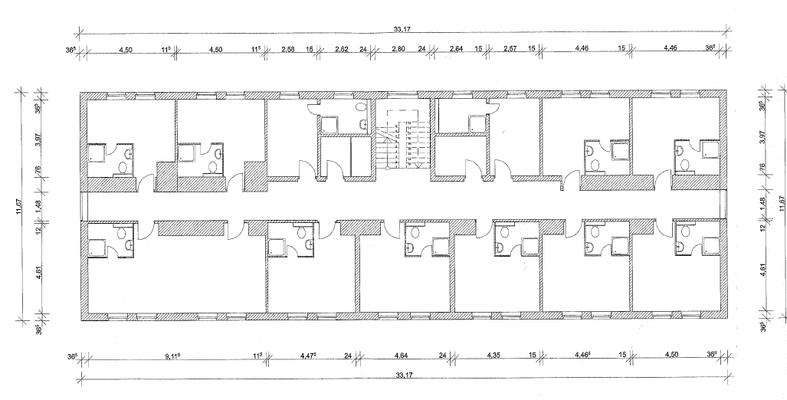
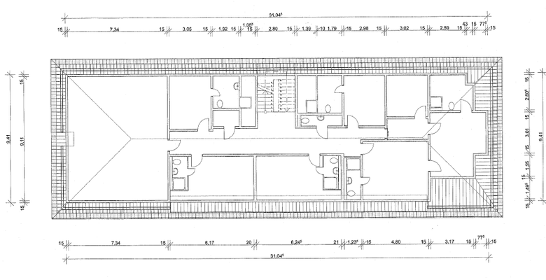
Objektbeschreibung
Zum Verkauf steht eine großzügige und gepflegte Immobilie, die 1968 erbaut und 1994 umfassend modernisiert wurde. Aktuell wird das Gebäude vom Eigentümer als Büroimmobilie genutzt, was eine sofortige und sichere Weiterführung des laufenden Betriebs oder eine flexible Neuausrichtung ermöglicht.
Die Immobilie überzeugt...
Ausstattung
?? Gebäudedaten
+ Baujahr: 1968
+ umfangreiche Modernisierung: 1994
+ Nutzfläche: 560,29 qm
+ solide Bauweise mit funktionaler Grundrissstruktur
??? Büro- und Besprechungsräume
+ 16 Büroräume (7 im Erdgeschoss, 9 im Obergeschoss)
+ 3 Besprechungsräume
+ 1 Seminarraum im Dachgeschoss - ideal für...
Weitere Informationen
Sonstiges
Rechtlicher Hinweis:
Sämtliche Objektangaben basieren auf den uns erteilten Informationen des Verkäufers. Sie wurden gewissenhaft wiedergegeben. Eine Gewähr für ihre Richtigkeit kann jedoch nicht übernommen werden. Der Empfänger kann sich nur darauf berufen, von diesem Angebot bereits vorher Kenntnis...
Anbieter der Immobilie
Römmler Immobilien GmbH
Berthelsdorfer Str. 75, 09599 Freiberg
Online-ID: 2mv5558
Referenznummer: 277
Finde Angebote wie dieses
Hier geht es zu unserem Impressum, den Allgemeinen Geschäftsbedingungen, den Hinweisen zum Datenschutz und nutzungsbasierter Online-Werbung.