
Truschel Immobilien
Frau Ulla Truschel
004 ···
Nr. anzeigenPreise & Kosten
Provision für Käufer
3,57% inkl. Mwst. verdient und fällig mit Beurkundung des notariellen Kaufvertrages.
Lage
Das Objekt befindet sich im Ortsteil Schlierbach der Kerngemeinde Schaafheim. Hier finden Sie noch die Ruhe vom Alltag, die Sie suchen! Idyllisch, naturverbunden, mit kurzen Wegen zum Feld, Wald, Wiesen und Bächen... der maßgebliche Unterschied zur Großstadt!
Genießen Sie das Besondere, jedoch auch die Möglichkeit, mit nur...
Das Haus
Kategorie
Einfamilienhaus
Baujahr
1907
Energie & Heizung
Warum sehe ich diese Anzeige? – Du siehst diese Anzeige basierend auf Ihrer Navigation auf unserer Website und den Suchkriterien, die du verwendet hast.
Energieausweis: für diesen Gebäudetyp nicht notwendig
Weitere Energiedaten
Energieträger
Flüssiggas
Details
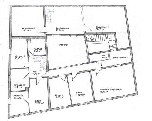
Objektbeschreibung
Charmante Hofreite im Ortskern von Schlierbach - mit modernisierter Wohneinheit und viel Potenzial!
Inmitten des gewachsenen Ortskerns präsentiert sich diese traditionelle Hofreite aus dem Jahr 1907 als wahres Schmuckstück für Liebhaber historischer Bausubstanz und der ländlichen Wohnidylle.
Das Ensemble...
Ausstattung
- zwei getrennte Wohneinheiten: Wohneinheit modernisiert (1960er Jahre) + sanierungsbedürftiges Bauernhaus (1907)
- idyllischer Innenhof mit viel Privatsphäre
- kein Garten
- großes Potenzial für individuelle Nutzungskonzepte
- 2021 | neuer Buderus Brennwertkessel
- Gas-Heizung Flüssiggas-Ausführung
- kein...
Weitere Informationen
Sonstiges
Hinweis zu den Objektfotos:
Bitte beachten Sie weiterhin, dass ausgewählte Räume mit einem erweiterten Winkel fotografiert wurden. Dies soll zur besseren Raumdarstellung für Sie dienen. Eine Verzerrung der Raumgröße ist dadurch möglich. Wir bitten um Ihr...
Anbieter der Immobilie
Truschel Immobilien
Dieselstr. 4, 64850 Schaafheim
Online-ID: 2mv7v56
Referenznummer: Objekt ID_000943
Finde Angebote wie dieses
Hier geht es zu unserem Impressum, den Allgemeinen Geschäftsbedingungen, den Hinweisen zum Datenschutz und nutzungsbasierter Online-Werbung.