Consus Living GmbH

Consus Living Sekretariat

Schwarzenbergplatz: Repräsentatives 8-Zimmer-Altbaubüro - VIDEO verfügbar !

€ 9.923
Nettomiete
303 m²
Bürofläche ca.
k.A.
Teilbare Fläche
8
Zimmer

Der Anbieter dieses Objekts hat gegenüber der AVIV Germany GmbH als Betreiber dieses Online-Marktplatzes erklärt, nicht als Unternehmer im Sinne des § 1 KSchG zu handeln. Die im Verbraucherschutzrecht der Union verankerten Verbraucherrechte (insbesondere Informationspflichten und Rücktritts- bzw. Widerrufsrechte) finden auf den Vertrag zwischen dem Anbieter des Objekts und Ihnen (dem Interessenten) keine Anwendung.

Gewerblicher Anbieter

Der Anbieter dieses Objekts hat gegenüber der AVIV Germany GmbH als Betreiber dieses Online-Marktplatzes erklärt, als Unternehmer im Sinne des § 1 KSchG zu handeln.

AdresseBrucknerstraße
1040 Wien 
(Wieden)
Auf Karte ansehen

Preise & Kosten

Nettomiete € 9.923

Kaution

3 Bruttomonatsmieten

Provision für Mieter

provisionsfrei

Lage

Beste Infrastruktur durch unmittelbare Nähe zum Wiener Karlsplatz/Karlskirche und Schwarzenbergplatz.

Öffentliche Anbindung: U-Bahn Linien U1, U2 und U4 in ca. 4-5 Gehminuten erreichbar. Badner Bahn, sowie diverse Tram- und Buslinien in 5-6 Gehminuten erreichbar.

Büro-/Praxisfläche

Kategorie

Bürofläche

Geschoss

2. Geschoss

  • Einbauküche
  • Böden: Fliesenboden, Parkett
  • voll klimatisiert
  • Personenaufzug

Energie & Heizung

Heizwärmebedarf (HWB)

123,00 kWh/(m²·a)

Details

Objektbeschreibung

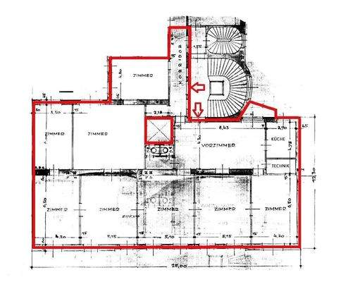
In einem eleganten Wiener Stilaltbau direkt beim Schwarzenbergplatz gelangt eine außergewöhnliche Büroeinheit zur Vermietung. Das Objekt befindet sich derzeit im unsanierten Zustand und wird im Zuge einer Komplettsanierung modernisiert. Vorgesehen sind acht großzügige Büroräume, ergänzt um alle Nebenflächen, die ein moderner...

Mehr anzeigen

Weitere Informationen

Stichworte
Nutzfläche: 303,00 m², Anzahl Balkone: 1, Bundesland: Wien, Distanz zum Flughafen: 9.48, Distanz zum Hauptbahnhof: 1.55, Distanz zum Bus: 0.19

Anbieter der Immobilie

Partner

Consus Living GmbH

Mattiellistraße 3, 1040 WIEN

user

Consus Living Sekretariat

Dein Ansprechpartner

Anbieter-Website Anbieter-Profil Anbieter-Impressum

Online-ID: 2mvad59

Referenznummer: BRU-204B

Finde Angebote wie dieses

imageimageimage

Hier geht es zu unserem Impressum, den Allgemeinen Geschäftsbedingungen, den Hinweisen zum Datenschutz und nutzungsbasierter Online-Werbung.